Waiting for video...
ONLINE AUCTIONS from 26 DECEMBER - 1 JANUARY
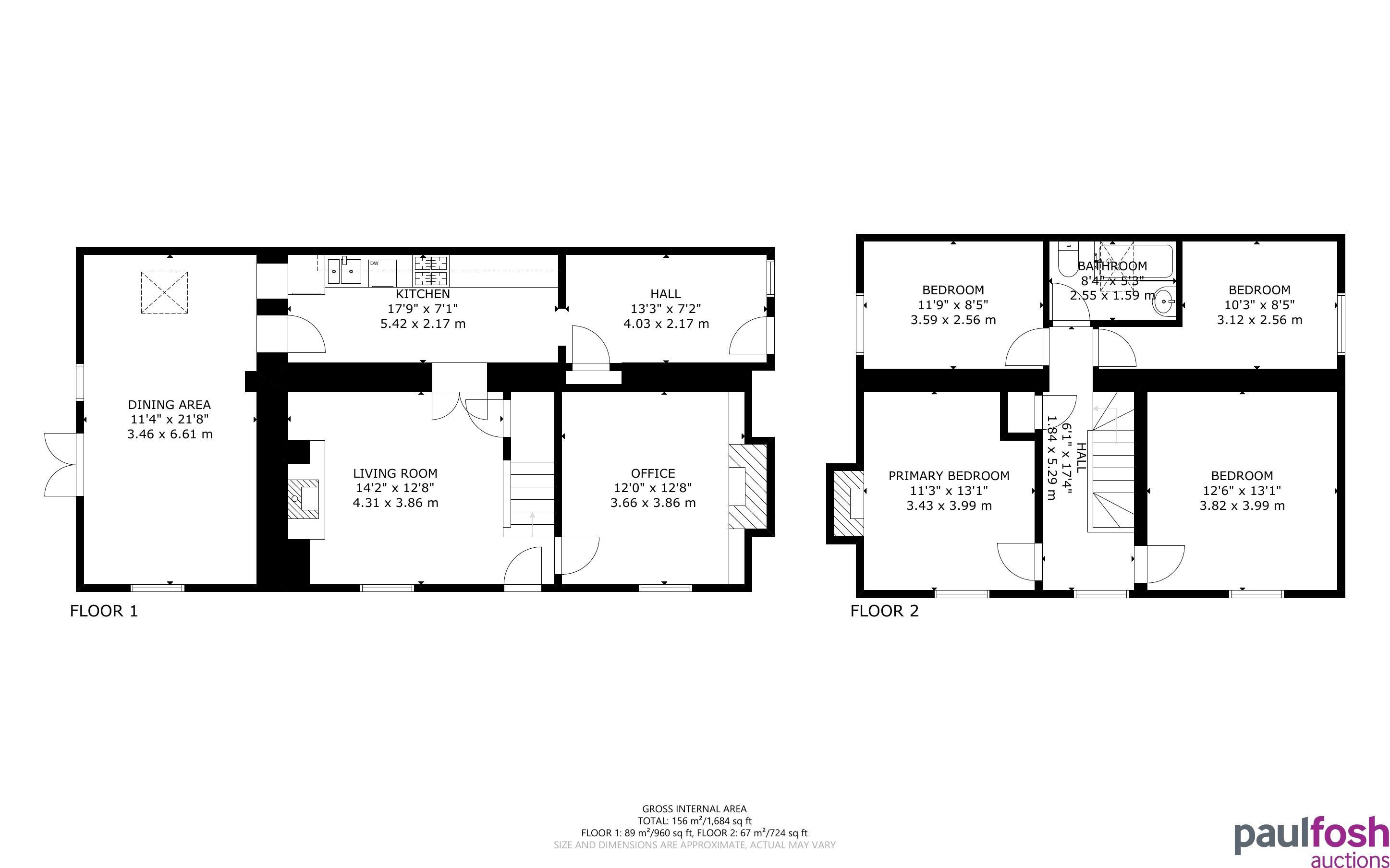
Tucked away in a secluded and peaceful position, this Victorian period detached house with some original features includes 2 acres of land consisting of two fields (signs of Japanese Knotweed) and woodland, gardens, vegetable plot and stream plus orchard area. The property provides three reception rooms, kitchen, utility/boot room, four bedrooms and a bathroom. Given the stunning location being near tourist attractions within the Forest of Dean, the bustling market towns of Ross on Wye and Monmouth along with outdoor pursuits in the Wye Valley - an Area of Outstanding Natural Beauty (AONB), the property could make an ideal holiday let investment. In addition the property could be let to tenants and we anticipate a rental of approximately £1,400pcm.
N.B - There is no vehicular access to the property. Access is on foot via a short lane from the main road (less than 1 minute walk).
DIRECTIONS: From the bottom of Lydbrook (B4234) opposite the River Wye continue up for approximately 0.6 miles. The narrow lane can be located on the right in between a small block of cream flats and a cottage "The Firs" and opposite "The Anchorage". Walk along the lane bearing a left at a gate and follow it around where the property is the last house on the left.
What Three Words ///organist.comforted.broccoli
Lydbrook is a small village which is both within the Forest of Dean and in the Wye Valley AONB. It has a rich industrial history and occupies a steep sided valley leading to the river and is an ideal base for walking, cycling and enjoying the river with direct access to launch canoes from the car park. 'The Old House', which dates from the 15th century was at one time home to the famous actress Sarah Siddons. The village maintains an attractive area known locally as 'The Tump' located on the banks of the Wye which is a popular launching point for canoeists and rafters and is an ideal setting for a picnic. Lydbrook is an ideal location for outdoor pursuits and is very close to Symonds Yat just a few miles walk along the Wye from Lydbrook. A cycle path runs through the village and ther are many good walks. Lydbrook is around 4 miles from Coleford and Cinderford and 7 miles from Ross-on-Wye and Monmouth. Nearby villages include Ruardean, Brierley and English Bicknor.
INVESTORS If you are looking for assistance in tenant find and/or management packages, information on rental income/interest potential we have a Lettings Department that can help you. Please call us or email sarah@paulfoshlettings.com for invaluable advice.
VIRTUAL TOUR
Ground Floor Sitting room, Dining room, Study/Snug, Kitchen, Utility/Boot room
First Floor 4 Bedrooms, bathroom
Outside 2 Acre plot including gardens, orchards, 2 fields and woodland. Garden shed.
To be sold with vacant possession
Advised Freehold - to be verified by solicitor
Auction fees: The sale of each lot is subject to a buyer’s premium/admin fee of 1.5% of the purchase price (subject to a minimum of £1,500 for sale prices between £1 and £50,000 or subject to a minimum of £2,400 for sale prices of £50,001 upwards) including VAT unless otherwise stated.
Additional costs: The purchase of the property may be subject to (but are not limited to), VAT (if applicable), reimbursement of the seller’s search fees, reimbursement of seller’s legal and/or sales costs, stamp duty/land transaction tax (LTT). Please check accompanying legal pack for further details.
* Generally speaking Guide Prices are provided as an indication of each seller's minimum expectation, i.e. 'The Reserve'. They are not necessarily figures which a property will sell for and may change at any time prior to the auction. Virtually every property will be offered subject to a Reserve (a figure below which the Auctioneer cannot sell the property during the auction) which we expect will be set within the Guide Range or no more than 10% above a single figure Guide.
As a trusted partner of Paul Fosh Auctions, Together could offer the auction finance you need, when you need it. Visit togethermoney.com for more information.
If considering a mortgage, we advise that you inspect and consider the property carefully with your lender before bidding.
By setting a proxy bid, the system will automatically bid on your behalf to maintain your position as the highest bidder, up to your proxy bid amount. If you are outbid, you will be notified via email so you can opt to increase your bid if you so choose.
If two of more users place identical bids, the bid that was placed first takes precedence, and this includes proxy bids.
Another bidder placed an automatic proxy bid greater or equal to the bid you have just placed. You will need to bid again to stand a chance of winning.