Waiting for video...
ONLINE AUCTION from 10th DECEMBER-12th DECEMBER
SALE AGREED
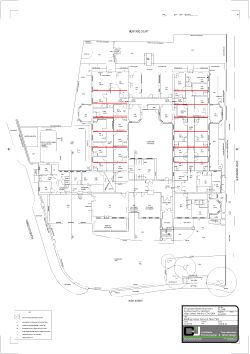
Situated on the former Merthyr General Hospital site Full Planning Permission has been granted for 30 self-contained flats. Located in and with Conservation Area Planning Consent the prominent corner plot will feature extensive communal gardens plus parking. The vendor may consider up to an extended 10 week completion on this lot, if purchasers require it.
There are significant plans regarding the re- generation of Merthyr Tydfil including the re-development of the railway station and former bus station site are part of Merthyr Tydfil’s town centre plan for the next 15 years. The council has announced “ambitious long-term plans” to help Merthyr Tydfil “buck the national trend of high street decline” and transform into a thriving town centre. The masterplan describes its ambitions for Merthyr Tydfil to become “the tourism capital of the Valleys and Brecon Beacons” with links to the Cyfarthfa Heritage Area Masterplan.
Viewing: No viewings inside the fenced site are available.
PLANNING
Full Planning permission has been granted for 30 self-contained (6 x 2 bed & 24 x 1 bed) flats Planning ref: P/23/0196
Conservation Area Consent Planning ref: P/23/0270
Please contact Merthyr Tydfil County Borough Council for further information
VIEWINGS No viewings (no access to site)
To be sold with vacant possession
Advised Freehold - to be verified by solicitor
Auction fees: The sale of each lot is subject to a buyer’s premium/admin fee of 1.5% of the purchase price (subject to a minimum of £1,500 for sale prices between £1 and £50,000 or subject to a minimum of £2,400 for sale prices of £50,001 upwards) including VAT unless otherwise stated.
Additional costs: The purchase of the property may be subject to (but are not limited to), VAT (if applicable), reimbursement of the seller’s search fees, reimbursement of seller’s legal and/or sales costs, stamp duty/land transaction tax (LTT). Please check accompanying legal pack for further details.
* Generally speaking Guide Prices are provided as an indication of each seller's minimum expectation, i.e. 'The Reserve'. They are not necessarily figures which a property will sell for and may change at any time prior to the auction. Virtually every property will be offered subject to a Reserve (a figure below which the Auctioneer cannot sell the property during the auction) which we expect will be set within the Guide Range or no more than 10% above a single figure Guide.
As a trusted partner of Paul Fosh Auctions, Together could offer the auction finance you need, when you need it. Visit togethermoney.com for more information.
If considering a mortgage, we advise that you inspect and consider the property carefully with your lender before bidding.
By setting a proxy bid, the system will automatically bid on your behalf to maintain your position as the highest bidder, up to your proxy bid amount. If you are outbid, you will be notified via email so you can opt to increase your bid if you so choose.
If two of more users place identical bids, the bid that was placed first takes precedence, and this includes proxy bids.
Another bidder placed an automatic proxy bid greater or equal to the bid you have just placed. You will need to bid again to stand a chance of winning.