Waiting for video...
ONLINE AUCTION from 1st OCTOBER-7th OCTOBER
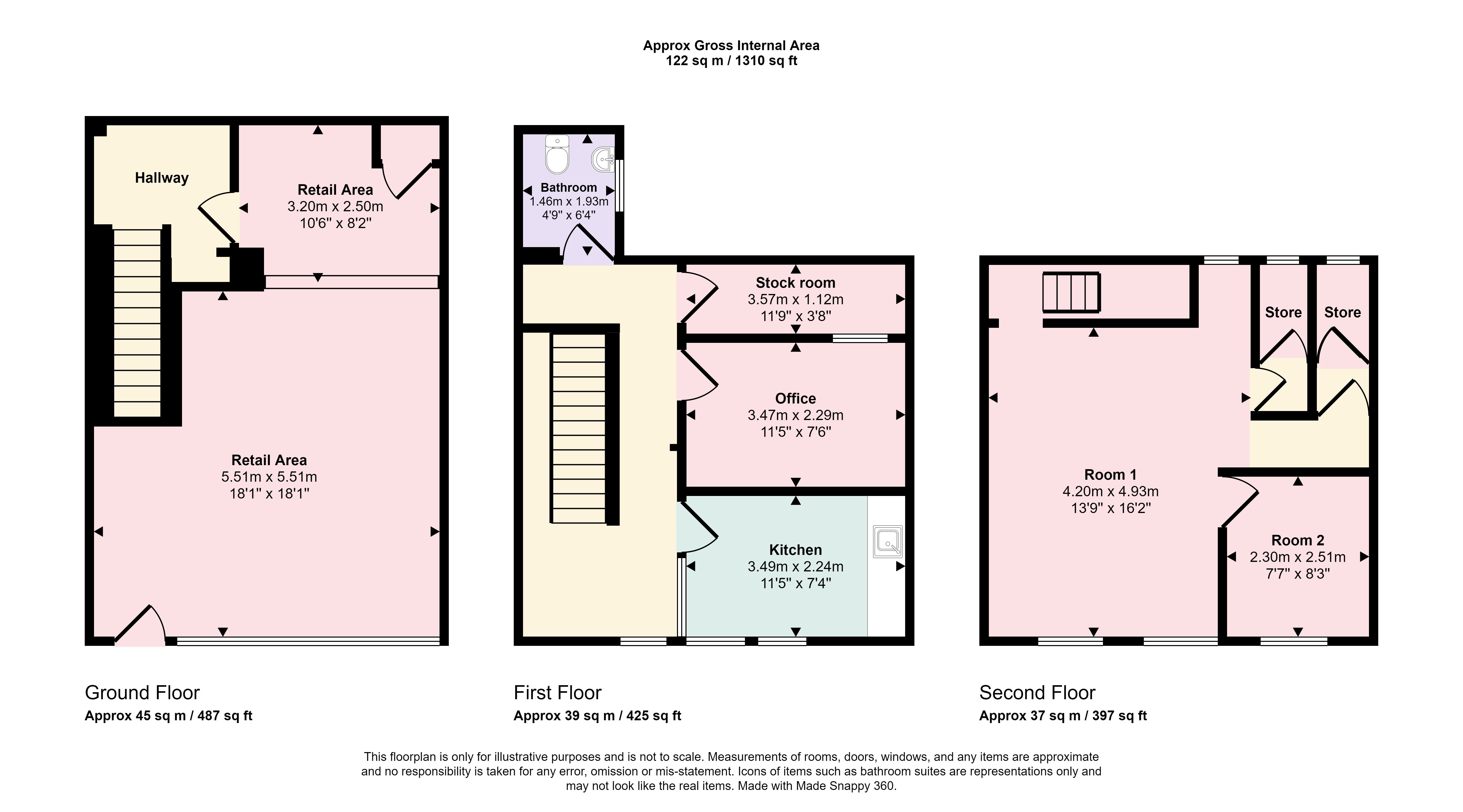
A three storey building with a retail unit to the ground floor and ancillary accommodation above. The property was previously occupied by the mobile retailer 'Three', and is now being sold with vacant possession.
Subject to the relevant consents the property may be suitable but not limited to use as a clothing store, cafe or gift shop.
Location
This property is located in 100% prime retail position in Neath town centre. Adjacent occupiers include Poundland and Clinton Cards. Other notable occupiers in the vicinity include Boots, Superdrug, Clarks, Greggs, Next and Costa Coffee.
The town provides good road links with the M4 being in close proximity, providing access to Swansea, Cardiff and Bristol. Additionally, Neath train station is less than a five minute walk.
Services
Electric, gas and water (not tested).
VAT
VAT is applicable on the sale of this property.
Virtual Tour
| Floor | Area Sq Ft | Area Sq M |
|---|---|---|
| Ground Floor | 487 | 45 |
| First Floor | 425 | 39 |
| Second Floor | 397 | 37 |
To be sold with vacant possession
Advised Leasehold - to be verified by solicitor - 90 years from 25th September 1979
Auction fees: The sale of each lot is subject to a buyer’s premium/admin fee of 1.5% of the purchase price (subject to a minimum of £1,500 for sale prices between £1 and £50,000 or subject to a minimum of £2,400 for sale prices of £50,001 upwards) including VAT unless otherwise stated.
Additional costs: The purchase of the property may be subject to (but are not limited to), VAT (if applicable), reimbursement of the seller’s search fees, reimbursement of seller’s legal and/or sales costs, stamp duty/land transaction tax (LTT). Please check accompanying legal pack for further details.
* Generally speaking Guide Prices are provided as an indication of each seller's minimum expectation, i.e. 'The Reserve'. They are not necessarily figures which a property will sell for and may change at any time prior to the auction. Virtually every property will be offered subject to a Reserve (a figure below which the Auctioneer cannot sell the property during the auction) which we expect will be set within the Guide Range or no more than 10% above a single figure Guide.
As a trusted partner of Paul Fosh Auctions, Together could offer the auction finance you need, when you need it. Visit togethermoney.com for more information.
If considering a mortgage, we advise that you inspect and consider the property carefully with your lender before bidding.
By setting a proxy bid, the system will automatically bid on your behalf to maintain your position as the highest bidder, up to your proxy bid amount. If you are outbid, you will be notified via email so you can opt to increase your bid if you so choose.
If two of more users place identical bids, the bid that was placed first takes precedence, and this includes proxy bids.
Another bidder placed an automatic proxy bid greater or equal to the bid you have just placed. You will need to bid again to stand a chance of winning.