Waiting for video...
ONLINE AUCTION from 1st OCTOBER-3rd OCTOBER
An substantial five bedroom property offering generous living accommodation.
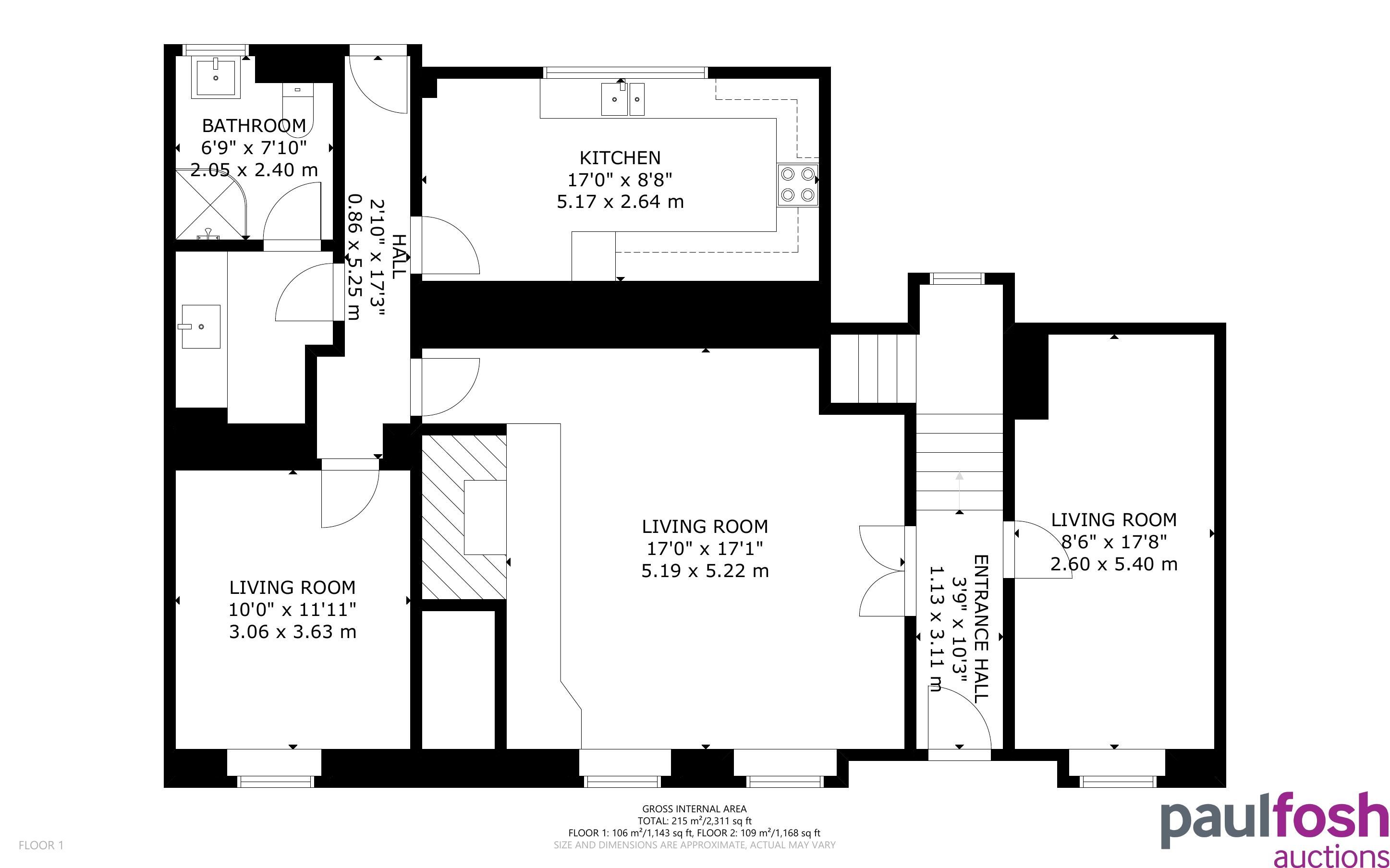
The property was renovated in 2023 and offers to the ground floor; three reception rooms, kitchen diner, utility room and shower room.
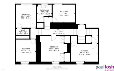
The first floor offers five bedrooms and a family bathroom. The second floor offers a loft room.
To the rear the property offers a sizeable garden area with detached garage.
Given the size, the property could offer scope for conversion into flats or offer multiple occupation living (subject to any necessary consents).
The property is located in the highly sought after village of Johnstown which is within walking distance to amenities and approximately a five minute drive to the bustling town of Carmarthen with its wide range of shops and amenities and the impressive Carmarthen castle.
VIRTUAL TOUR
Ground Floor: Lounge, dining room, reception room, kitchen, utility room, shower room
First Floor: 5 bedrooms
Second Floor: Attic
Outside: Rear garden, detached garage
D
To be sold with vacant possession
INVESTORS: If you are looking for assistance in tenant find and/or management packages, information on rental income/interest potential, we have a Lettings Department that can help you. Please call us on 01633 746800 or email lettings@paulfoshlettings.com for invaluable advice.
Advised Freehold - to be verified by solicitor
Auction fees: The sale of each lot is subject to a buyer’s premium/admin fee of 1.5% of the purchase price (subject to a minimum of £1,500 for sale prices between £1 and £50,000 or subject to a minimum of £2,400 for sale prices of £50,001 upwards) including VAT unless otherwise stated.
Additional costs: The purchase of the property may be subject to (but are not limited to), VAT (if applicable), reimbursement of the seller’s search fees, reimbursement of seller’s legal and/or sales costs, stamp duty/land transaction tax (LTT). Please check accompanying legal pack for further details.
* Generally speaking Guide Prices are provided as an indication of each seller's minimum expectation, i.e. 'The Reserve'. They are not necessarily figures which a property will sell for and may change at any time prior to the auction. Virtually every property will be offered subject to a Reserve (a figure below which the Auctioneer cannot sell the property during the auction) which we expect will be set within the Guide Range or no more than 10% above a single figure Guide.
As a trusted partner of Paul Fosh Auctions, Together could offer the auction finance you need, when you need it. Visit togethermoney.com for more information.
If considering a mortgage, we advise that you inspect and consider the property carefully with your lender before bidding.
By setting a proxy bid, the system will automatically bid on your behalf to maintain your position as the highest bidder, up to your proxy bid amount. If you are outbid, you will be notified via email so you can opt to increase your bid if you so choose.
If two of more users place identical bids, the bid that was placed first takes precedence, and this includes proxy bids.
Another bidder placed an automatic proxy bid greater or equal to the bid you have just placed. You will need to bid again to stand a chance of winning.