Waiting for video...
Reserve has been reduced
ONLINE AUCTION from 27th AUGUST-29th AUGUST
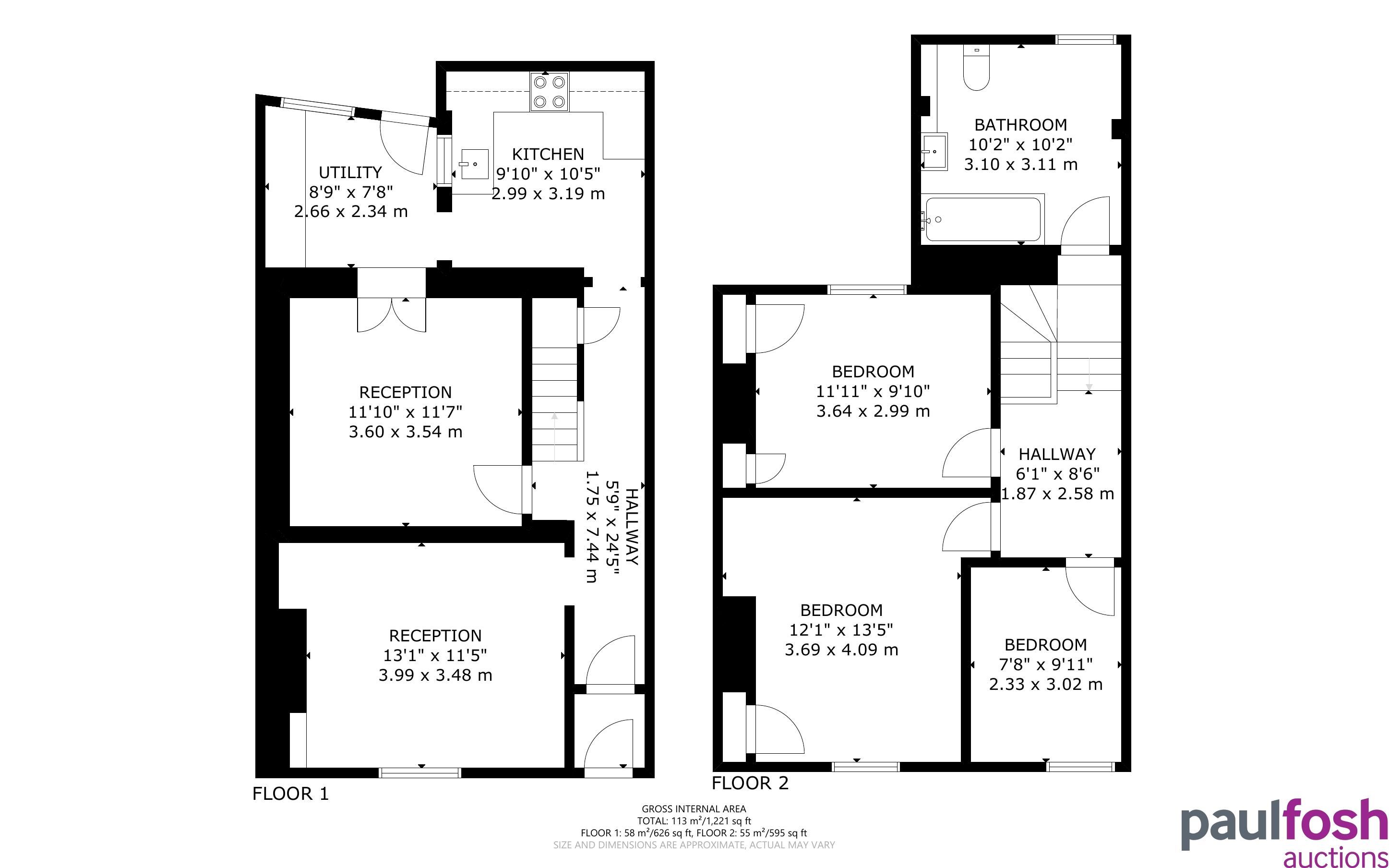
A mid terraced newly refurbished house with excellent commuter links and a short walk to high street shops and railway station. The property offers a sitting room, dining room, kitchen, utility room, three bedrooms and a bathroom. Outside there is a garden area with a w.c. outbuilding, basement room and hardstanding area which backs onto the rear lane with potential to create off street parking once gated access installed. Double glazing and central heating (not tested). The property is to be sold with vacant possession and we anticipate a monthly rental income of approximately £900 pcm.
Newport is a city and county borough in Wales, situated on the River Usk, 12 mi (19 km) northeast of Cardiff. The city is undergoing extensive re-generation including new housing developments, a State of the Arts new river fronted leisure centre and a deal between Newport City Council and consultant to reinvigorate the city centre. Newport provides excellent transport links to Cardiff, Bristol and London via railway links and the M4.
VIRTUAL TOUR
Ground Floor: Lounge, dining room, kitchen, utility room
First Floor: 3 bedrooms, bathroom
Outside: Rear garden basement room, outbuilding – w.c, hardstanding area with parking potential, rear lane access
C
To be sold with vacant possession
INVESTORS: If you are looking for assistance in tenant find and/or management packages, information on rental income/interest potential we have a Lettings Department that can help you. Please call us or email lettings@paulfoshlettings.com for invaluable advice.
Advised Freehold - to be verified by solicitor
Auction fees: The sale of each lot is subject to a buyer’s premium/admin fee of 1.5% of the purchase price (subject to a minimum of £1,500 for sale prices between £1 and £50,000 or subject to a minimum of £2,400 for sale prices of £50,001 upwards) including VAT unless otherwise stated.
Additional costs: The purchase of the property may be subject to (but are not limited to), VAT (if applicable), reimbursement of the seller’s search fees, reimbursement of seller’s legal and/or sales costs, stamp duty/land transaction tax (LTT). Please check accompanying legal pack for further details.
* Generally speaking Guide Prices are provided as an indication of each seller's minimum expectation, i.e. 'The Reserve'. They are not necessarily figures which a property will sell for and may change at any time prior to the auction. Virtually every property will be offered subject to a Reserve (a figure below which the Auctioneer cannot sell the property during the auction) which we expect will be set within the Guide Range or no more than 10% above a single figure Guide.
As a trusted partner of Paul Fosh Auctions, Together could offer the auction finance you need, when you need it. Visit togethermoney.com for more information.
If considering a mortgage, we advise that you inspect and consider the property carefully with your lender before bidding.
By setting a proxy bid, the system will automatically bid on your behalf to maintain your position as the highest bidder, up to your proxy bid amount. If you are outbid, you will be notified via email so you can opt to increase your bid if you so choose.
If two of more users place identical bids, the bid that was placed first takes precedence, and this includes proxy bids.
Another bidder placed an automatic proxy bid greater or equal to the bid you have just placed. You will need to bid again to stand a chance of winning.