Waiting for video...
ONLINE AUCTION from 27th AUGUST-29th AUGUST 2024
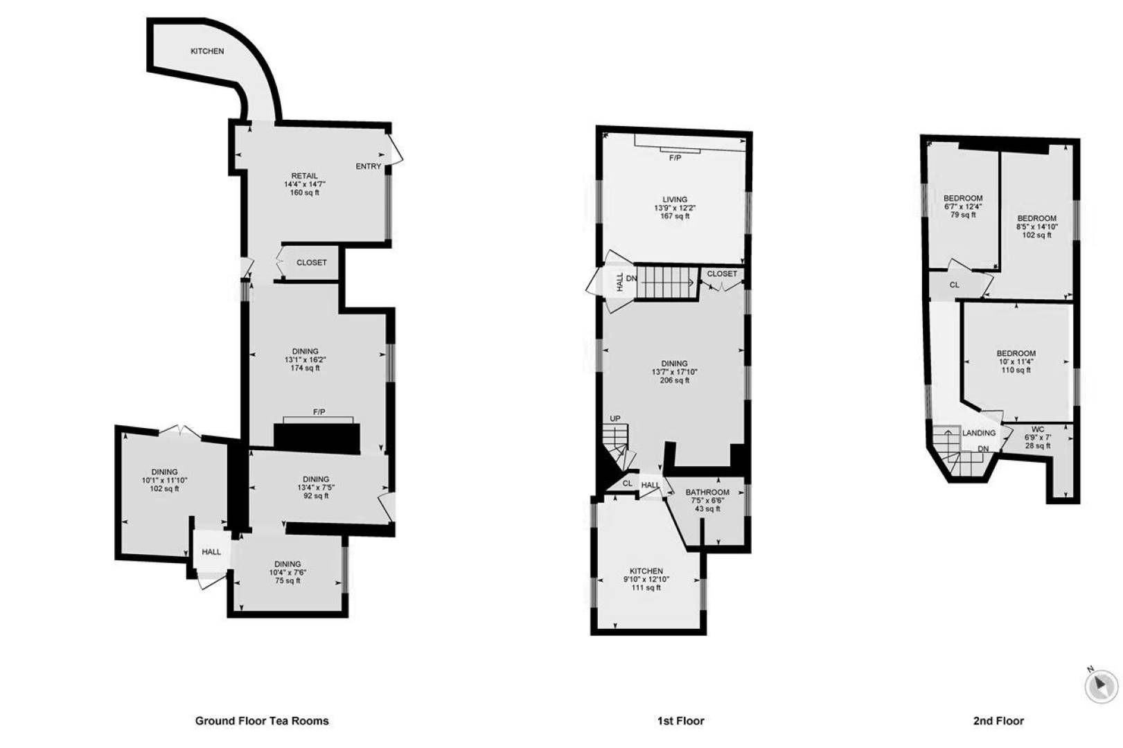
An opportunity to purchase a ground floor tenanted cafe and three bed vacant maisonette with garden.
Cafe - The cafe is currently tenanted and is achieving a rental income of £22,500 per year. The tenants have recently signed a 10 year tenancy agreement with 5 year break clause. There is rent review clause in the agreement for 2027.
Maisonette - A well presented three bedroom maisonette. The property is accessed via a door to the side of the cafe. Once inside you are presented with a hallway with staircase leading to the first floor. The first floor comprises of a living room, dining room, bathroom and kitchen. The top floor comprises of three bedrooms and a WC. To the rear of the property is a garden which can be accessed via the dining room.
Subject to the relevant consents this property may be suitable for use as an AirBNB.
Location
The historic City of Llandaff lies to the north of Cardiff city centre, beside the River Taff. It boasts the magnificent Llandaff Cathedral, a bustling High Street, a picturesque village green and a thriving community.
Llandaff is a popular and sought after residential suburb conveniently located for schools. The high street offers shops, cafes, public houses, restaurants and banks, including a commuter railway station and a frequent bus service to and from the city centre.
Llandaff also offers some of Cardiff’s best educational establishments in close proximity to the property including Llandaff Cathedral School and Howell’s School for girls age 3-18. The Llandaff campus of the University of Wales (UWIC) as well as the Bishop of Llandaff Church in Wales High School are is also nearby.
Services
The property benefits from gas, water and electric (not tested).
VAT
We have been advised that no VAT is due on the sale of this property.
| Floor | Description | Area Sq Ft | Area Sq M |
|---|---|---|---|
| Ground Floor | Retail Area | 160 | 14.86 |
| Dining Room 1 | 174 | 16.16 | |
| Dining Room 2 | 92 | 8.54 | |
| Dining Room 3 | 75 | 6.96 | |
| Dining Room 4 | 102 | 9.47 | |
| First Floor | Living Room | 167 | 15.51 |
| Dining Room | 206 | 19.13 | |
| Bathroom | 43 | 3.99 | |
| Kitchen | 111 | 10.31 | |
| Second Floor | Bedroom 1 | 79 | 7.33 |
| Bedroom 2 | 102 | 9.47 | |
| Bedroom 3 | 110 | 10.21 | |
| WC | 28 | 2.60 |
| Tenant | Tenancy Type | Start Date / End Date | Tenancy Term | Rental Amount |
|---|---|---|---|---|
| Cafe | IRI (tenants pay 50% towards repairs) | 21st May 2024/20th May 2034 | 10 years | £22,500 per annum |
| Maisonette | Vacant | Vacant | Vacant | Vacant |
Advised Freehold - to be verified by solicitor
Auction fees: The sale of each lot is subject to a buyer’s premium/admin fee of 1.5% of the purchase price (subject to a minimum of £1,500 for sale prices between £1 and £50,000 or subject to a minimum of £2,400 for sale prices of £50,001 upwards) including VAT unless otherwise stated.
Additional costs: The purchase of the property may be subject to (but are not limited to), VAT (if applicable), reimbursement of the seller’s search fees, reimbursement of seller’s legal and/or sales costs, stamp duty/land transaction tax (LTT). Please check accompanying legal pack for further details.
* Generally speaking Guide Prices are provided as an indication of each seller's minimum expectation, i.e. 'The Reserve'. They are not necessarily figures which a property will sell for and may change at any time prior to the auction. Virtually every property will be offered subject to a Reserve (a figure below which the Auctioneer cannot sell the property during the auction) which we expect will be set within the Guide Range or no more than 10% above a single figure Guide.
As a trusted partner of Paul Fosh Auctions, Together could offer the auction finance you need, when you need it. Visit togethermoney.com for more information.
If considering a mortgage, we advise that you inspect and consider the property carefully with your lender before bidding.
By setting a proxy bid, the system will automatically bid on your behalf to maintain your position as the highest bidder, up to your proxy bid amount. If you are outbid, you will be notified via email so you can opt to increase your bid if you so choose.
If two of more users place identical bids, the bid that was placed first takes precedence, and this includes proxy bids.
Another bidder placed an automatic proxy bid greater or equal to the bid you have just placed. You will need to bid again to stand a chance of winning.