Waiting for video...
ONLINE AUCTION from 23rd JULY-25th JULY
A semi detached three bedroom property requiring updating.
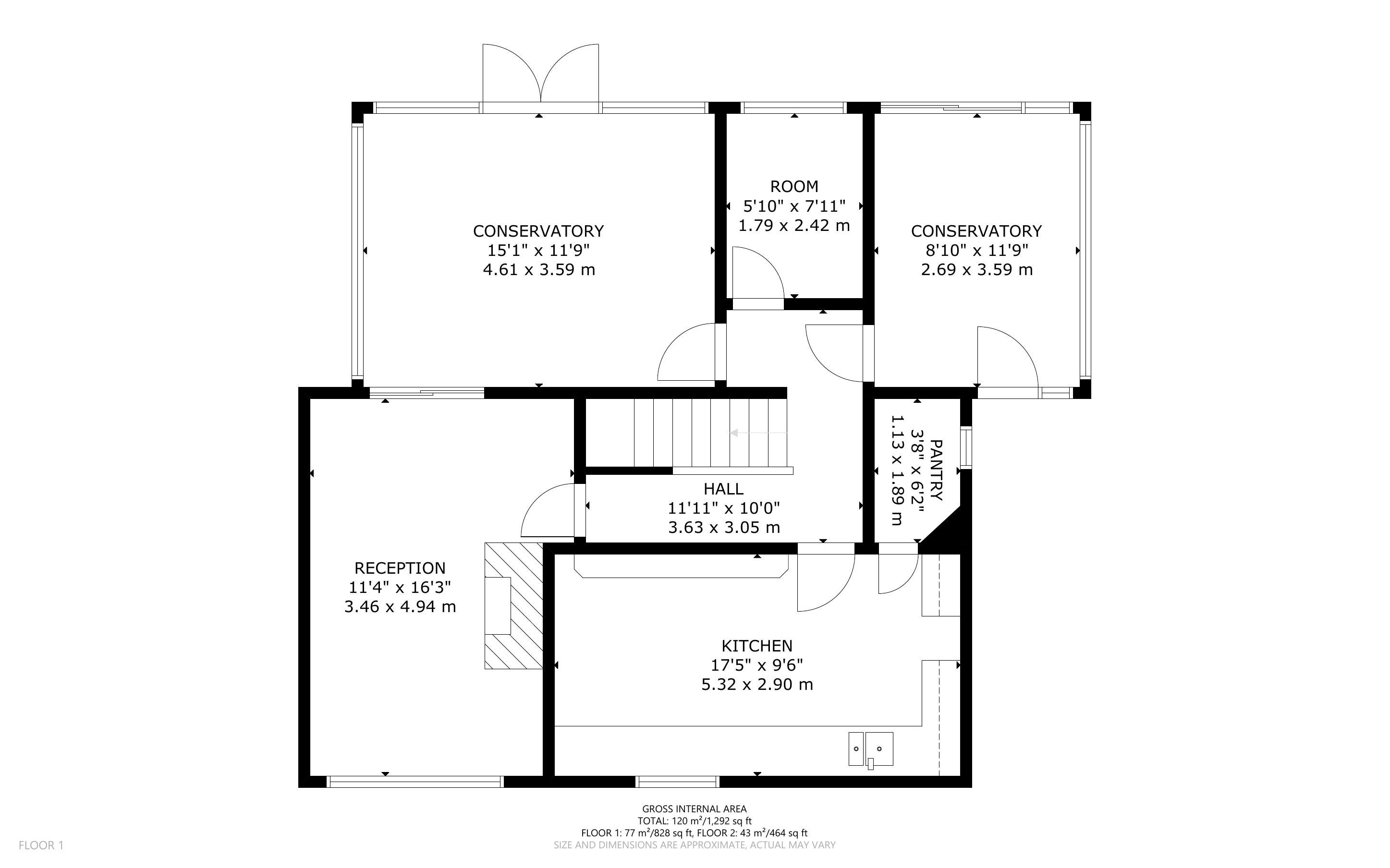
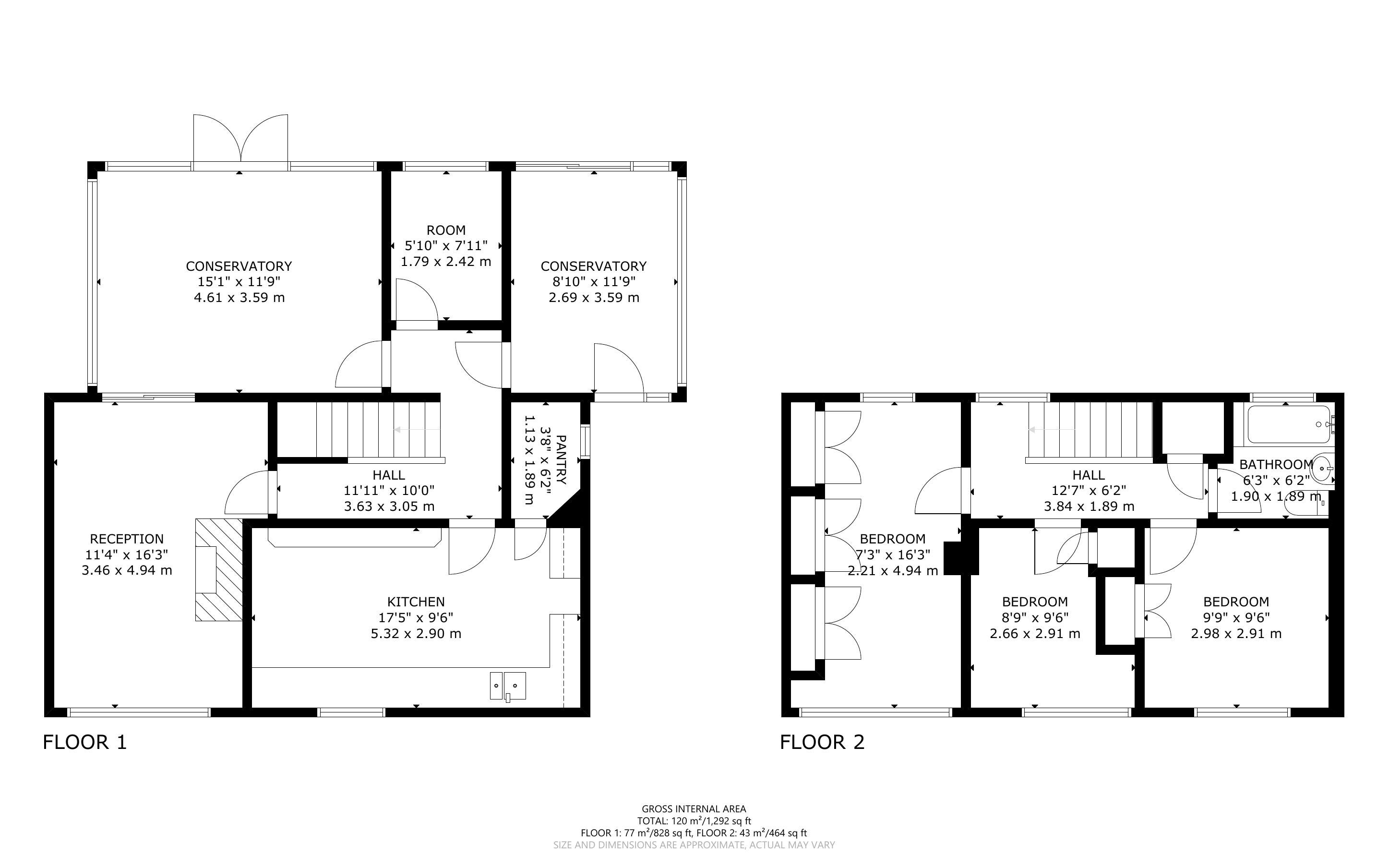
The property offers generous living accommodation and comprises lounge, kitchen, utility area and two conservatories.
The first floor offers three bedrooms and bathroom. The outside offers gardens to the side and rear. There is potential to install off road parking to the rear (subject to any necessary consents). The property offers gas central heating (not tested) and also benefits from far reaching views to the rear.
For buy to let purposes, we anticipate a rental of circa £900 per calendar month once updated.
The village of Ystrad Mynach is located nearby, and there are amenities and schools within. Excellent transportation options are nearby for commuters with the property offering easy access to the A470 and Penallta Millennium Park is close by, so the property also benefits those who enjoy the outdoors.
VIRTUAL TOUR
Ground Floor: Entrance hallway, lounge, kitchen, utility area, 2 conservatories
First Floor: 3 bedrooms, bathroom
Outside: Front, side and rear gardens
B
To be sold with vacant possession
INVESTORS: If you are looking for assistance in tenant find and/or management packages, information on rental income/interest potential, we have a Lettings Department that can help you. Please call us on 01633 746800 or email sarah@paulfoshlettings.com for invaluable advice.
Advised Freehold - to be verified by solicitor
Auction fees: The sale of each lot is subject to a buyer’s premium/admin fee of 1.5% of the purchase price (subject to a minimum of £1,500 for sale prices between £1 and £50,000 or subject to a minimum of £2,400 for sale prices of £50,001 upwards) including VAT unless otherwise stated.
Additional costs: The purchase of the property may be subject to (but are not limited to), VAT (if applicable), reimbursement of the seller’s search fees, reimbursement of seller’s legal and/or sales costs, stamp duty/land transaction tax (LTT). Please check accompanying legal pack for further details.
* Generally speaking Guide Prices are provided as an indication of each seller's minimum expectation, i.e. 'The Reserve'. They are not necessarily figures which a property will sell for and may change at any time prior to the auction. Virtually every property will be offered subject to a Reserve (a figure below which the Auctioneer cannot sell the property during the auction) which we expect will be set within the Guide Range or no more than 10% above a single figure Guide.
As a trusted partner of Paul Fosh Auctions, Together could offer the auction finance you need, when you need it. Visit togethermoney.com for more information.
If considering a mortgage, we advise that you inspect and consider the property carefully with your lender before bidding.
By setting a proxy bid, the system will automatically bid on your behalf to maintain your position as the highest bidder, up to your proxy bid amount. If you are outbid, you will be notified via email so you can opt to increase your bid if you so choose.
If two of more users place identical bids, the bid that was placed first takes precedence, and this includes proxy bids.
Another bidder placed an automatic proxy bid greater or equal to the bid you have just placed. You will need to bid again to stand a chance of winning.