Waiting for video...
The property has sold prior to auction.
ONLINE AUCTION from 23rd JULY-25th JULY
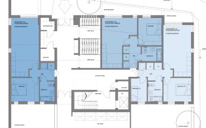
A sports and social club with pre-app advise for 15 apartments.
The property is comprised of a large open plan lounge with games room and bar to the ground floor and a function room with four bed owners accommodation to the top floor. There is also an outside courtyard with a capacity in excess of 250.
The business is currently trading but will be sold with vacant possession. Due to the diminishing number of licensed premises in the area the success of the pub has been good and is known as more of a traditional local public house rather than a sports and social club. It is supported by local customers as well as games teams, including darts, pool and skittles.
Location
The property is prominently located in the inner city of Cardiff in the suburb of Splott. It is located just one mile east of the city centre and one and half miles to the south of Cardiff Bay.
Occupying a prominent corner position, and Situated on Walker Road, one of the main thoroughfares leading to Cardiff city centre. This property would make an ideal investment premises.
This property has good transport links, within close proximity to the M4, Cardiff Central train station and local bus routes.
Planning Permission
There is pre-application planning for the property to be demolished and for 15 apartments to be built.
Business Rates
Current rateable value is £12,750. The property is classified as 'Club & premises'.
Services
The property benefits from gas, water and electric (not tested).
VAT
We have been advised that no VAT is applicable on this sale.
To be sold with vacant possession
Advised Freehold - to be verified by solicitor
Auction fees: The sale of each lot is subject to a buyer’s premium/admin fee of 1.5% of the purchase price (subject to a minimum of £1,500 for sale prices between £1 and £50,000 or subject to a minimum of £2,400 for sale prices of £50,001 upwards) including VAT unless otherwise stated.
Additional costs: The purchase of the property may be subject to (but are not limited to), VAT (if applicable), reimbursement of the seller’s search fees, reimbursement of seller’s legal and/or sales costs, stamp duty/land transaction tax (LTT). Please check accompanying legal pack for further details.
* Generally speaking Guide Prices are provided as an indication of each seller's minimum expectation, i.e. 'The Reserve'. They are not necessarily figures which a property will sell for and may change at any time prior to the auction. Virtually every property will be offered subject to a Reserve (a figure below which the Auctioneer cannot sell the property during the auction) which we expect will be set within the Guide Range or no more than 10% above a single figure Guide.
As a trusted partner of Paul Fosh Auctions, Together could offer the auction finance you need, when you need it. Visit togethermoney.com for more information.
If considering a mortgage, we advise that you inspect and consider the property carefully with your lender before bidding.
By setting a proxy bid, the system will automatically bid on your behalf to maintain your position as the highest bidder, up to your proxy bid amount. If you are outbid, you will be notified via email so you can opt to increase your bid if you so choose.
If two of more users place identical bids, the bid that was placed first takes precedence, and this includes proxy bids.
Another bidder placed an automatic proxy bid greater or equal to the bid you have just placed. You will need to bid again to stand a chance of winning.