Waiting for video...
ONLINE AUCTION from 23rd JULY-25th JULY
An opportunity to acquire a fully occupied mid terrace property consisting of three self contained flats.
All flats are now currently occupied. Now at full occupancy the property achieves £22,680 per annum making this a great investment opportunity. The current vendor has enjoyed good occupancy levels.
All flats benefit from gas central heating provided by a combination boiler (not tested) and double glazing. Flat A benefits from two bedrooms, with flat B and C enjoying shared access to the garden. The tenants have expressed they would like to remain.
All flats appear in good order and all comprise open plan lounge with fitted kitchens with bathrooms.
The property is located in Pill, which is within walking distance of local amenities and only a short walk into Newport city centre which offers a wider range of facilities and amenities. Newport offers a wide range of facilities including retail parks and offers easy access to the M4 corridor providing access to Bristol cardiff and surronding areas.
VIRTUAL TOUR
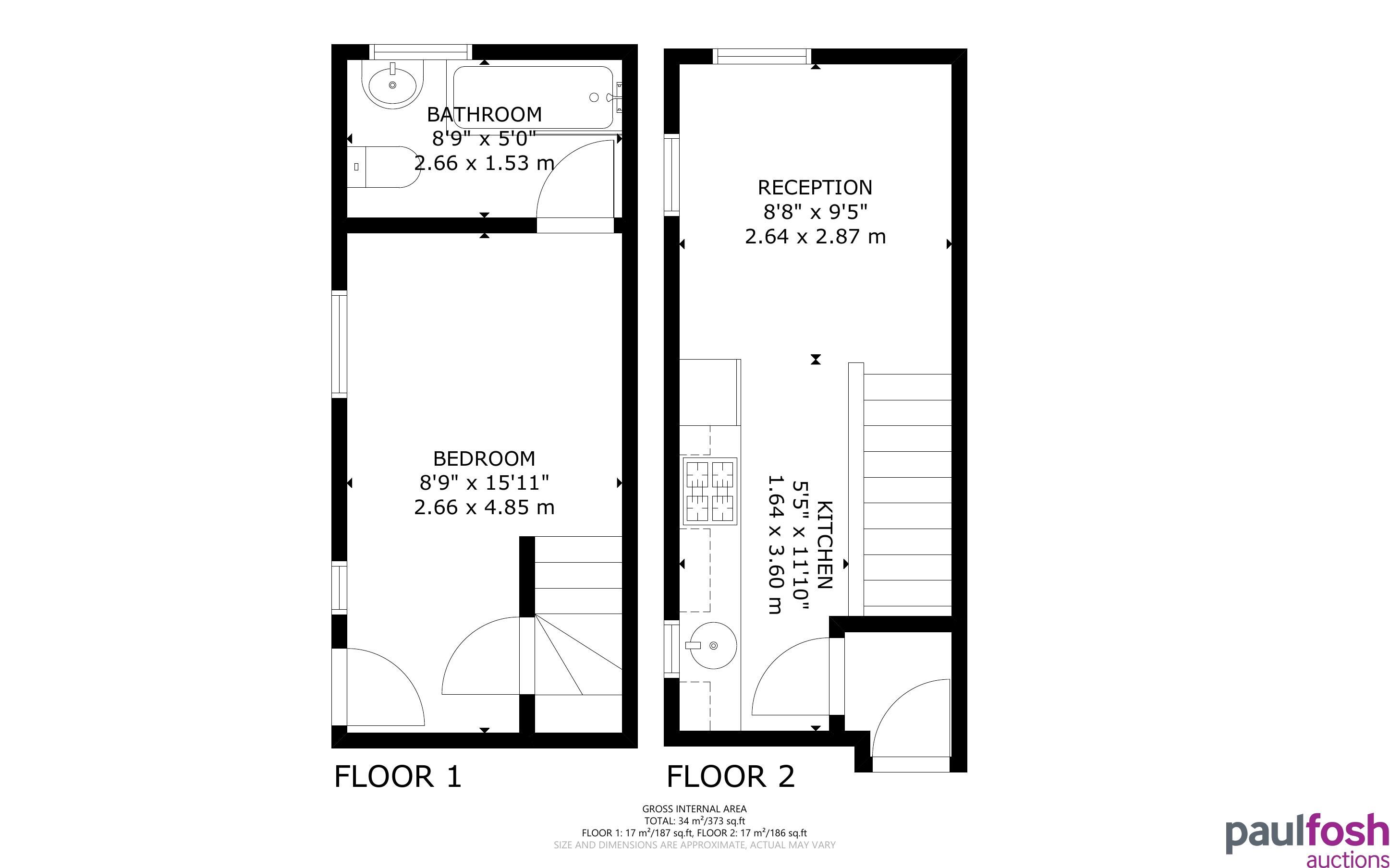
Ground Floor: Communal Hallway, stairs to first floor, Flat B - double bedroom, lounge kitchen, bathroom, access to shared garden
First Floor
Flat A: Kitchen, lounge, bedroom, bathroom, attic bedroom
Flat C: Kitchen, lounge, stairs to ground floor, bedroom, bathroom, access to shared garden
A
Advised Freehold - to be verified by solicitor
Auction fees: The sale of each lot is subject to a buyer’s premium/admin fee of 1.5% of the purchase price (subject to a minimum of £1,500 for sale prices between £1 and £50,000 or subject to a minimum of £2,400 for sale prices of £50,001 upwards) including VAT unless otherwise stated.
Additional costs: The purchase of the property may be subject to (but are not limited to), VAT (if applicable), reimbursement of the seller’s search fees, reimbursement of seller’s legal and/or sales costs, stamp duty/land transaction tax (LTT). Please check accompanying legal pack for further details.
* Generally speaking Guide Prices are provided as an indication of each seller's minimum expectation, i.e. 'The Reserve'. They are not necessarily figures which a property will sell for and may change at any time prior to the auction. Virtually every property will be offered subject to a Reserve (a figure below which the Auctioneer cannot sell the property during the auction) which we expect will be set within the Guide Range or no more than 10% above a single figure Guide.
As a trusted partner of Paul Fosh Auctions, Together could offer the auction finance you need, when you need it. Visit togethermoney.com for more information.
If considering a mortgage, we advise that you inspect and consider the property carefully with your lender before bidding.
By setting a proxy bid, the system will automatically bid on your behalf to maintain your position as the highest bidder, up to your proxy bid amount. If you are outbid, you will be notified via email so you can opt to increase your bid if you so choose.
If two of more users place identical bids, the bid that was placed first takes precedence, and this includes proxy bids.
Another bidder placed an automatic proxy bid greater or equal to the bid you have just placed. You will need to bid again to stand a chance of winning.