Waiting for video...
The property has sold prior to auction.
ONLINE AUCTION from 23rd JULY-25th JULY
Regency Chambers is a three storey building with a basement. It has most recently been used as office space for a local solicitor's firm, however it would be suitable for alternative use subject to the relevant consents.
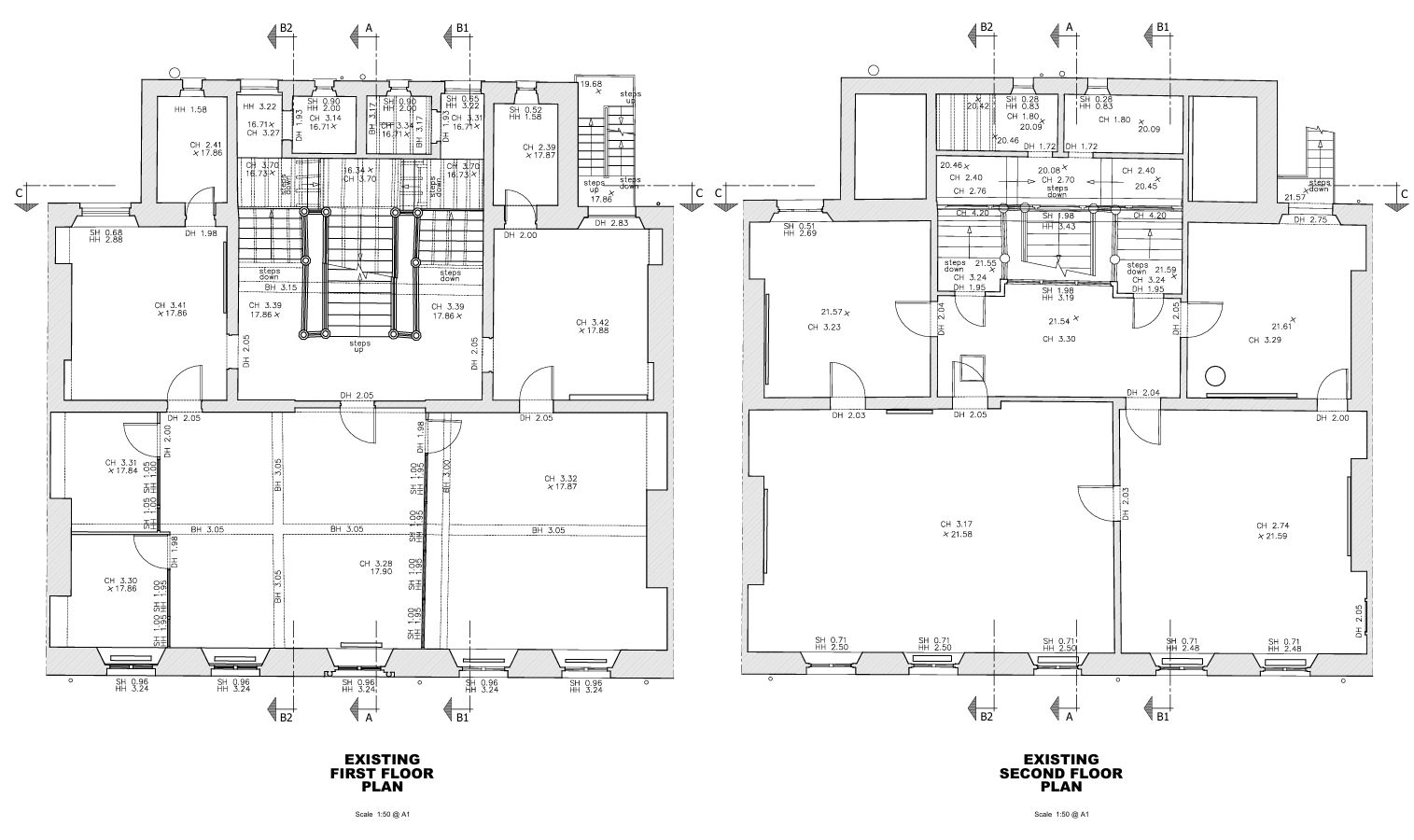
When entering the ground floor of the property you are presented with two large rooms and a grand central staircase. To the rear of the ground floor are two WC's. The first floor comprises of a large open plan board room and two WC's. The top floor is divided into three rooms with two WC's. There are five rooms plus a control room in the lower ground floor.
Subject to the relevant consents this property may be suitable for development, there are a number of mixed use units in this area, so residential consent may be a possibility.
Location
Situated in a prime location on Bridge Street in the centre of Newport. The property occupies 100% prime position in one of the main shopping thoroughfares through the city centre. There are a number of independent and National retailers within close proximity including Sports Direct, Card Factory and The Works.
The property benefits from being located within close proximity to Friars Walk shopping centre. Ideal for commuters, Newport bus station and railway station is in close proximity. Additionally, the property is close to the M4, which provides access to Cardiff, Bristol and London.
Services
The property benefits from gas, water and electric (not tested).
VAT
We have been advised that there is no VAT due on the sale of this property.
Walkthrough video
| Floor | Area Sq Ft | Area Sq M |
|---|---|---|
| Ground Floor | 1,195 | 110.99 |
| Lower Ground Floor/Basement | 1,015 | 94.28 |
| First Floor | 1,474 | 136.97 |
| Second Floor | 1,547 | 143.75 |
To be sold with vacant possession
Advised Freehold - to be verified by solicitor
Auction fees: The sale of each lot is subject to a buyer’s premium/admin fee of 1.5% of the purchase price (subject to a minimum of £1,500 for sale prices between £1 and £50,000 or subject to a minimum of £2,400 for sale prices of £50,001 upwards) including VAT unless otherwise stated.
Additional costs: The purchase of the property may be subject to (but are not limited to), VAT (if applicable), reimbursement of the seller’s search fees, reimbursement of seller’s legal and/or sales costs, stamp duty/land transaction tax (LTT). Please check accompanying legal pack for further details.
* Generally speaking Guide Prices are provided as an indication of each seller's minimum expectation, i.e. 'The Reserve'. They are not necessarily figures which a property will sell for and may change at any time prior to the auction. Virtually every property will be offered subject to a Reserve (a figure below which the Auctioneer cannot sell the property during the auction) which we expect will be set within the Guide Range or no more than 10% above a single figure Guide.
As a trusted partner of Paul Fosh Auctions, Together could offer the auction finance you need, when you need it. Visit togethermoney.com for more information.
If considering a mortgage, we advise that you inspect and consider the property carefully with your lender before bidding.
By setting a proxy bid, the system will automatically bid on your behalf to maintain your position as the highest bidder, up to your proxy bid amount. If you are outbid, you will be notified via email so you can opt to increase your bid if you so choose.
If two of more users place identical bids, the bid that was placed first takes precedence, and this includes proxy bids.
Another bidder placed an automatic proxy bid greater or equal to the bid you have just placed. You will need to bid again to stand a chance of winning.