Waiting for video...
ONLINE AUCTION from 23rd JULY-25th JULY
A detached house set in a large plot with lapsed planning for a detached dwelling.
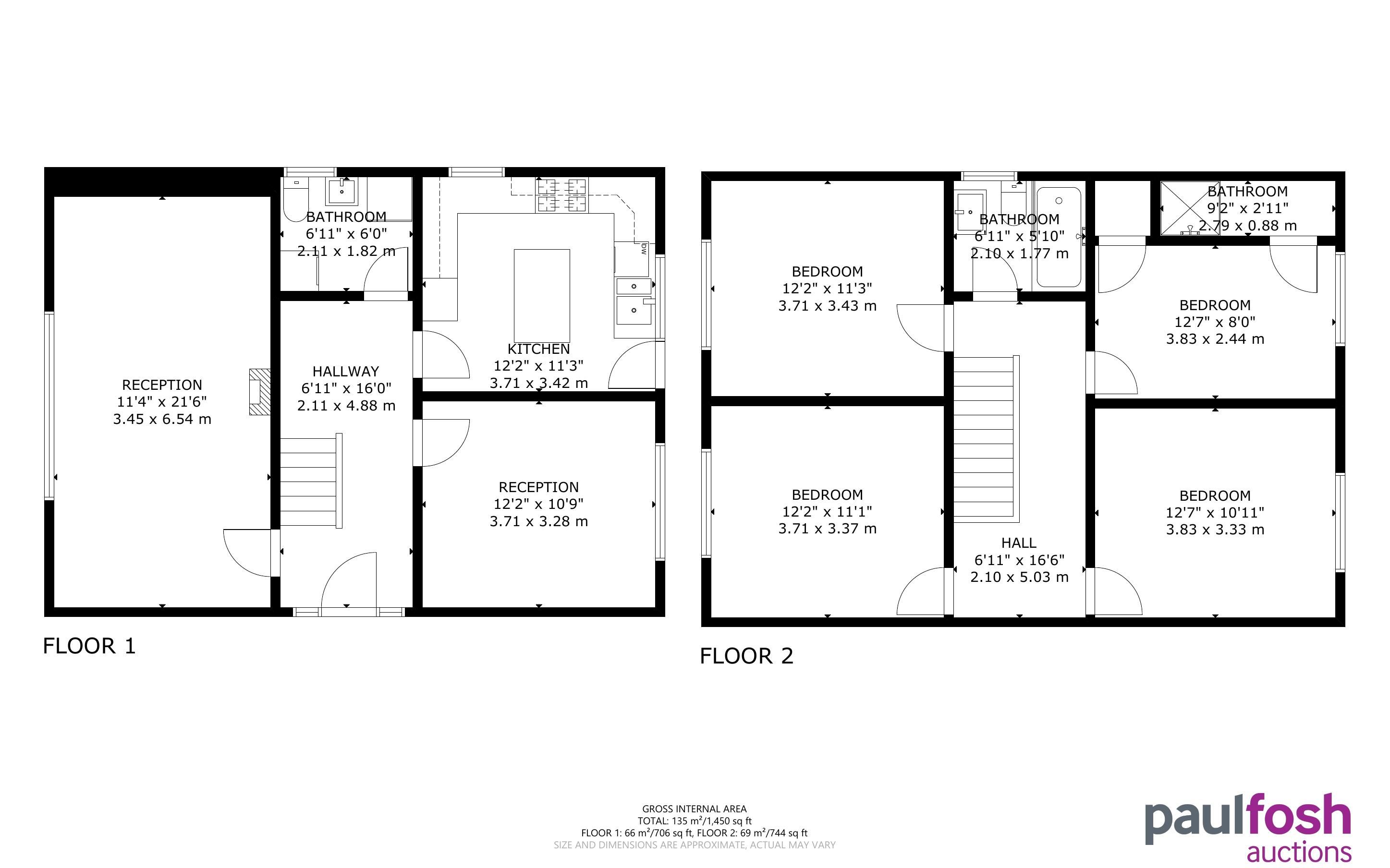
The property provides two reception rooms, kitchen/breakfast room, utility/cloak room, bathroom and four double bedrooms – master with en-suite. There is double glazing/gas central heating (not tested). There is a front garden, long gated drive to large driveway, detached garage and storage building, timber shed/summer house.
The property is to be sold with vacant possession.
We anticipate a rental of approximately £1,500 pcm.
Fforestfach is a suburban district of Swansea, Wales which developed during the Victorian era as part of the expansion of Swansea. The area is residential combined with light industry and retail park; and is close to the M4 motorway and several dual carriageways.
VIRTUAL TOUR
Ground Floor: Lounge, dining room, kitchen/breakfast room, utility room/cloakroom
First Floor: 4 bedrooms, bathroom and en-suite
Outside: Front garden, rear garden with timber shed/outbuilding, storage building, long driveway and large drive
E
To be sold with vacant possession
INVESTORS: If you are looking for assistance in tenant find and/or management packages, information on rental income/interest potential we have a Lettings Department that can help you. Please call us or email sarah@paulfoshlettings.com for invaluable advice.
Advised Freehold - to be verified by solicitor
Auction fees: The sale of each lot is subject to a buyer’s premium/admin fee of 1.5% of the purchase price (subject to a minimum of £1,500 for sale prices between £1 and £50,000 or subject to a minimum of £2,400 for sale prices of £50,001 upwards) including VAT unless otherwise stated.
Additional costs: The purchase of the property may be subject to (but are not limited to), VAT (if applicable), reimbursement of the seller’s search fees, reimbursement of seller’s legal and/or sales costs, stamp duty/land transaction tax (LTT). Please check accompanying legal pack for further details.
* Generally speaking Guide Prices are provided as an indication of each seller's minimum expectation, i.e. 'The Reserve'. They are not necessarily figures which a property will sell for and may change at any time prior to the auction. Virtually every property will be offered subject to a Reserve (a figure below which the Auctioneer cannot sell the property during the auction) which we expect will be set within the Guide Range or no more than 10% above a single figure Guide.
As a trusted partner of Paul Fosh Auctions, Together could offer the auction finance you need, when you need it. Visit togethermoney.com for more information.
If considering a mortgage, we advise that you inspect and consider the property carefully with your lender before bidding.
By setting a proxy bid, the system will automatically bid on your behalf to maintain your position as the highest bidder, up to your proxy bid amount. If you are outbid, you will be notified via email so you can opt to increase your bid if you so choose.
If two of more users place identical bids, the bid that was placed first takes precedence, and this includes proxy bids.
Another bidder placed an automatic proxy bid greater or equal to the bid you have just placed. You will need to bid again to stand a chance of winning.