Waiting for video...
ONLINE AUCTION from 18th JUNE-20th JUNE
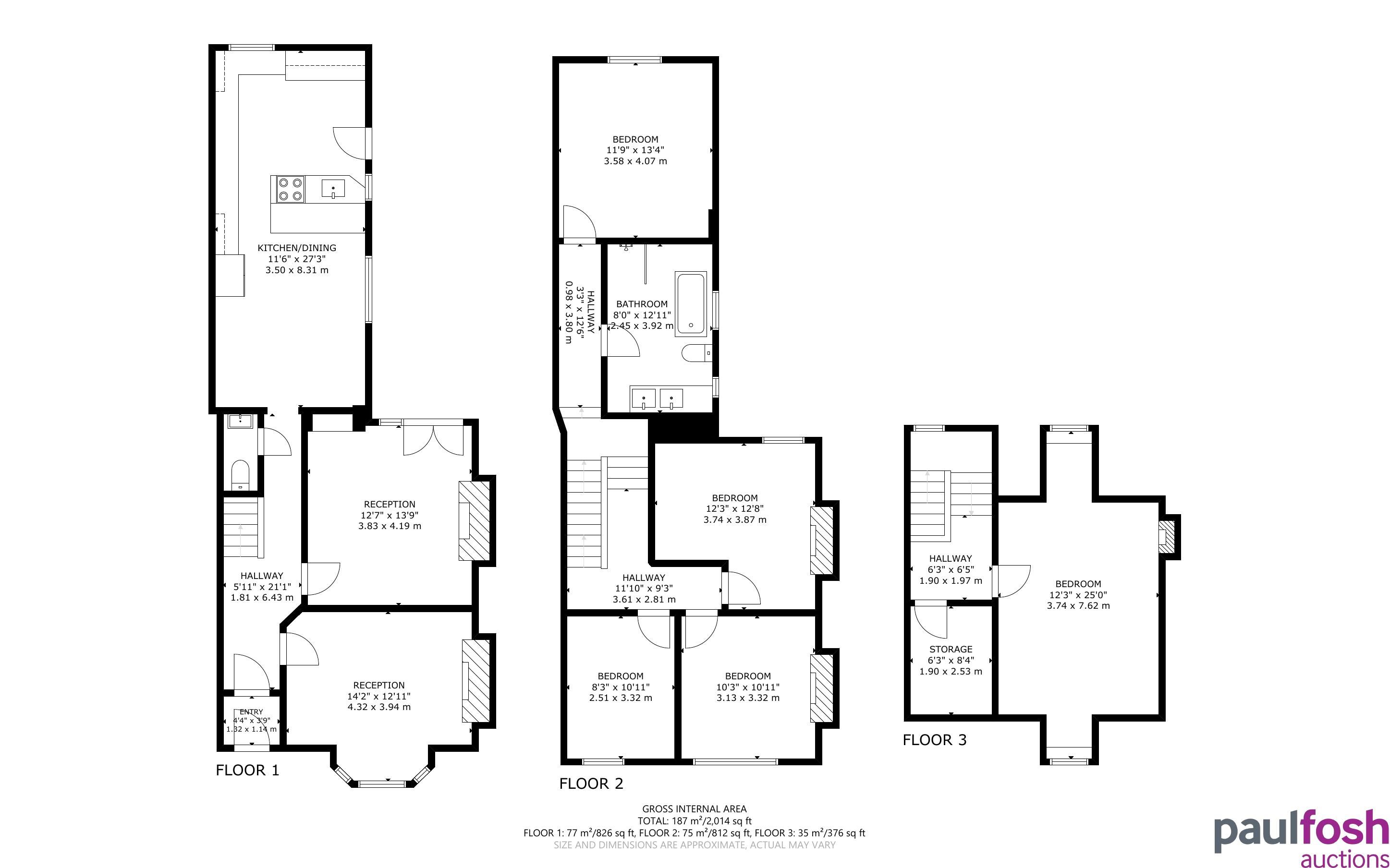
A spacious 3 storey period property which has been renovated to include UPVC sash windows and new roof but will require finishing off. The property which will be sold as seen, provides two reception rooms, kitchen/breakfast room, Cloakroom, 5 piece bathroom, 5 bedrooms and dressing room. Outside is a front and rear garden with rear garage/workshop. There is double glazing/gas central heating (not tested).
Bridgend is a town in the Bridgend County Borough of Wales, 20 miles (32 km) west of Cardiff and 20 miles (32 km) east of Swansea. Bridgend railway station has regular services to Cardiff Central, Bristol Parkway and London Paddington to the east; Port Talbot Parkway, Neath, Swansea and the West Wales Line to the west; and Maesteg to the north. There are also services to Manchester Piccadilly. Bridgend is the western terminus of the Vale of Glamorgan Line which reopened to passenger traffic in 2005. Wildmill railway station, about 1 mile (2 km) north of Bridgend railway station, serves the estates of Wildmill, Pendre and Litchard and is on the Bridgend-Maesteg branch line.
VIRTUAL TOUR
Ground Floor: Lounge, dining room, kitchen/breakfast room, cloakroom
First Floor: 4 bedrooms, 5 piece bathroom
Second Floor: 1 bedroom, dressing room
Outside: rear garden, front garden, garage/workshop at rear via access lane
D
The property is to be sold with vacant possession. We anticipate a rental of approximately £1,300 pcm.
INVESTORS: If you are looking for assistance in tenant find and/or management packages, information on rental income/interest potential we have a Lettings Department that can help you. Please call us or email sarah@paulfoshlettings.com for invaluable advice.
Advised Freehold - to be verified by solicitor
Auction fees: The sale of each lot is subject to a buyer’s premium/admin fee of 1.5% of the purchase price (subject to a minimum of £1,500 for sale prices between £1 and £50,000 or subject to a minimum of £2,400 for sale prices of £50,001 upwards) including VAT unless otherwise stated.
Additional costs: The purchase of the property may be subject to (but are not limited to), VAT (if applicable), reimbursement of the seller’s search fees, reimbursement of seller’s legal and/or sales costs, stamp duty/land transaction tax (LTT). Please check accompanying legal pack for further details.
* Generally speaking Guide Prices are provided as an indication of each seller's minimum expectation, i.e. 'The Reserve'. They are not necessarily figures which a property will sell for and may change at any time prior to the auction. Virtually every property will be offered subject to a Reserve (a figure below which the Auctioneer cannot sell the property during the auction) which we expect will be set within the Guide Range or no more than 10% above a single figure Guide.
As a trusted partner of Paul Fosh Auctions, Together could offer the auction finance you need, when you need it. Visit togethermoney.com for more information.
If considering a mortgage, we advise that you inspect and consider the property carefully with your lender before bidding.
By setting a proxy bid, the system will automatically bid on your behalf to maintain your position as the highest bidder, up to your proxy bid amount. If you are outbid, you will be notified via email so you can opt to increase your bid if you so choose.
If two of more users place identical bids, the bid that was placed first takes precedence, and this includes proxy bids.
Another bidder placed an automatic proxy bid greater or equal to the bid you have just placed. You will need to bid again to stand a chance of winning.