Waiting for video...
ONLINE AUCTION from 18th JUNE-20th JUNE
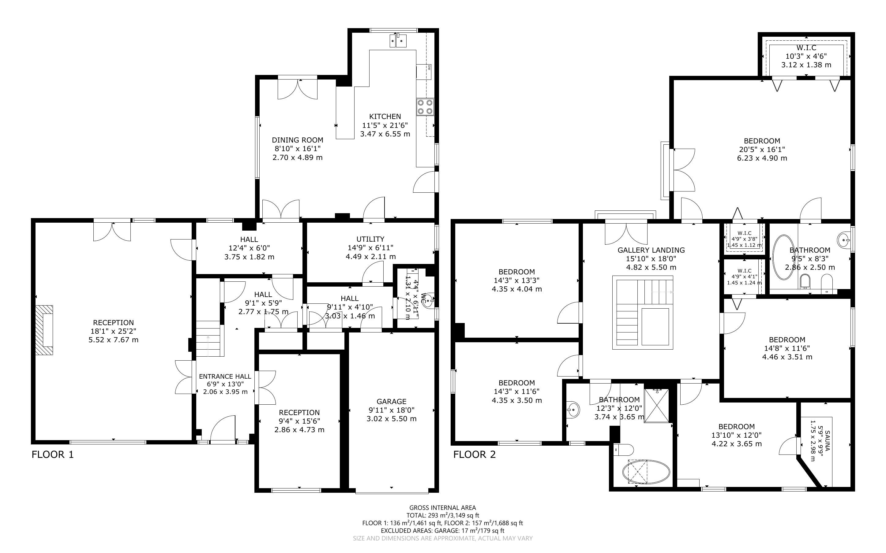
A substantial detached residence with garage and spacious gardens that benefits from four bedrooms (master ensuite).
The property requires improvement works but would be ideal for either a large family dwelling or potential to split into further units either houses or flats or use as an HMO (subject to neccessary planning consents).
The property benefits from fitted kitchen with appliances and bathroom suite
The property is just a short stroll from the village shops and facilities and there are excellent road and transport links to both Caerphilly and Newport and the M4.
“Our client is The Representative Body of the Church In Wales (Registered Charity Number: 1142813)”.
“N.B. This property will be sold subject to our client’s standard covenants, further details of which are available upon request”.
VIRTUAL TOUR
Ground Floor: Entrance hallway, lounge, kitchen/breakfast room
First Floor:Landing, bedroom 1 (en suite), 3 bedrooms, bathroom
Outside: Spacious drive for several cars and integral garage. Rear patio and garden area with laid lawn.
C
Advised Freehold - to be verified by solicitor
This property will be sold subject to our client’s standard covenants, further details of which are available upon request”.
Auction fees: The sale of each lot is subject to a buyer’s premium/admin fee of 1.5% of the purchase price (subject to a minimum of £1,500 for sale prices between £1 and £50,000 or subject to a minimum of £2,400 for sale prices of £50,001 upwards) including VAT unless otherwise stated.
Additional costs: The purchase of the property may be subject to (but are not limited to), VAT (if applicable), reimbursement of the seller’s search fees, reimbursement of seller’s legal and/or sales costs, stamp duty/land transaction tax (LTT). Please check accompanying legal pack for further details.
* Generally speaking Guide Prices are provided as an indication of each seller's minimum expectation, i.e. 'The Reserve'. They are not necessarily figures which a property will sell for and may change at any time prior to the auction. Virtually every property will be offered subject to a Reserve (a figure below which the Auctioneer cannot sell the property during the auction) which we expect will be set within the Guide Range or no more than 10% above a single figure Guide.
As a trusted partner of Paul Fosh Auctions, Together could offer the auction finance you need, when you need it. Visit togethermoney.com for more information.
If considering a mortgage, we advise that you inspect and consider the property carefully with your lender before bidding.
By setting a proxy bid, the system will automatically bid on your behalf to maintain your position as the highest bidder, up to your proxy bid amount. If you are outbid, you will be notified via email so you can opt to increase your bid if you so choose.
If two of more users place identical bids, the bid that was placed first takes precedence, and this includes proxy bids.
Another bidder placed an automatic proxy bid greater or equal to the bid you have just placed. You will need to bid again to stand a chance of winning.