Waiting for video...
ONLINE AUCTION from 14th MAY-16th MAY
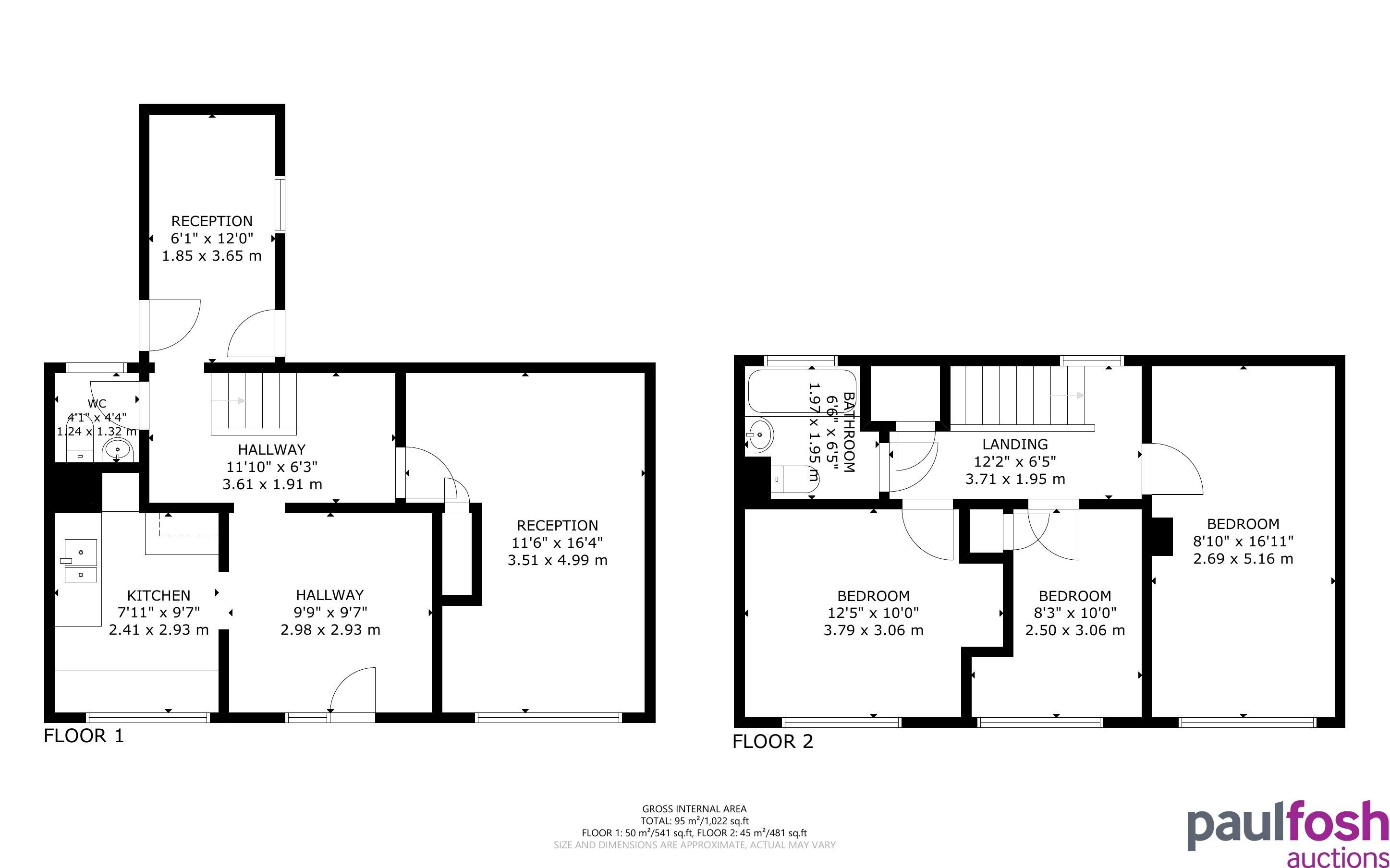
An ex-local authority semi-detached house with far-reaching views. The property has had a new kitchen, new bathroom and carpets fitted plus a new electric consumer box and re-decoration throughout. Accommodation includes lounge, kitchen, study/playroom, three bedrooms, bathroom and cloakroom. There is double glazing/gas central heating (not tested) The garden (overgrown) benefits from side access.
N.B We are informed by the Vendor that the owner of the fenced small strip of land running along and above the rear garden has approached him to see if he is interested in it . Purchasers would need to make their own enquiries and any post auction negotiations.
Ystrad Mynach is a town in the Caerphilly County Borough, within the ancient county of Glamorgan, Wales, and is 5 mi (8.0 km) north of the town of Caerphilly.
VIRTUAL TOUR
Ground Floor: Lounge, kitchen, study/playroom, cloakroom
First Floor: 3 bedrooms, bathroom
Outside: Rear, front and side gardens with side access to the front
B
The property is to be sold with vacant possession. The property was previously let at £700 pcm though we anticipate a more current rental of approximately £825 pcm.
INVESTORS: If you are looking for assistance in tenant find and/or management packages, information on rental income/interest potential we have a Lettings Department that can help you. Please call us or email sarah@paulfoshlettings.com for invaluable advice.
Advised Freehold - to be verified by solicitor
Auction fees: The sale of each lot is subject to a buyer’s premium/admin fee of 1.5% of the purchase price (subject to a minimum of £1,500 for sale prices between £1 and £50,000 or subject to a minimum of £2,400 for sale prices of £50,001 upwards) including VAT unless otherwise stated.
Additional costs: The purchase of the property may be subject to (but are not limited to), VAT (if applicable), reimbursement of the seller’s search fees, reimbursement of seller’s legal and/or sales costs, stamp duty/land transaction tax (LTT). Please check accompanying legal pack for further details.
* Generally speaking Guide Prices are provided as an indication of each seller's minimum expectation, i.e. 'The Reserve'. They are not necessarily figures which a property will sell for and may change at any time prior to the auction. Virtually every property will be offered subject to a Reserve (a figure below which the Auctioneer cannot sell the property during the auction) which we expect will be set within the Guide Range or no more than 10% above a single figure Guide.
As a trusted partner of Paul Fosh Auctions, Together could offer the auction finance you need, when you need it. Visit togethermoney.com for more information.
If considering a mortgage, we advise that you inspect and consider the property carefully with your lender before bidding.
By setting a proxy bid, the system will automatically bid on your behalf to maintain your position as the highest bidder, up to your proxy bid amount. If you are outbid, you will be notified via email so you can opt to increase your bid if you so choose.
If two of more users place identical bids, the bid that was placed first takes precedence, and this includes proxy bids.
Another bidder placed an automatic proxy bid greater or equal to the bid you have just placed. You will need to bid again to stand a chance of winning.