Lot 13 - Flats A & B, 114 Station Road, Llanelli, Dyfed, SA15 1YU

  • Unconditional Online Auction Sale
  • Guide Price* : 100,000+
  • Bedrooms: 3

Lot 13 - House Divided into Two Flats for Owner Occupier/Investment

Description

ONLINE AUCTION from 9th APRIL-11th APRIL

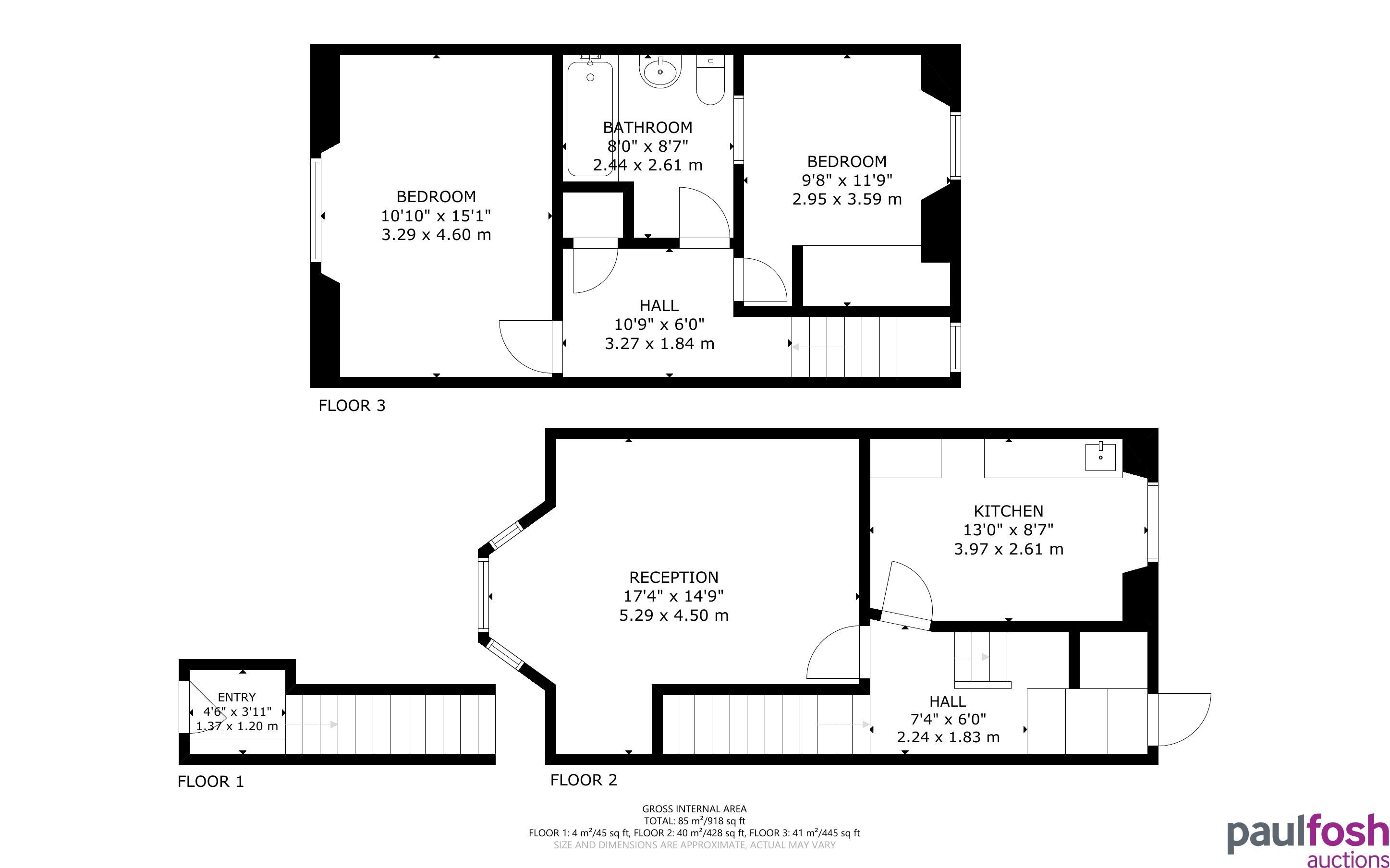
A four storey mid terraced house providing a one bedroom ground floor flat and a two bedroom first floor flat with recently laid carpets each with private access and shared use of a rear garage with gated rear lane access. In addition to the bedrooms each flat provides a lounge, kitchen and bathroom along with a small patio/garden area. There is double glazing/electric heating and fire escapes for each flat. The property is near the coast, Llanelli train station and local shops The one bedroom flat was previously let for £550 pcm and the two bedroom flat was previously let for £680 pcm - £14,760 per annum. The property, which could possibly lend itself to HMO accommodation, is now to be sold with vacant possession.

AGENTS NOTE: The vendor is also selling neighbouring 110 A & B And 112 A & B – see Lots: 15 & 16

Llanelli is a market town and community in Carmarthenshire county of Dyfed, Wales. It is located on the Loughor estuary and is the largest town in the county of Carmarthenshire. The town is 11 miles (18 km) north-west of Swansea and 12 miles (19 km) south-east of Carmarthen. The surrounding area is known for its breath-taking coastline. The Millennium Coastal Path along 13 miles (21 km) of coastline from Loughor to Pembrey offers views of the Gower Peninsula and the opportunity of traffic-free cycling. Excellent commuter links via the M4 and Llanelli train station.

Virtual Tour:

Virtual Tour:

Accommodation

Ground Floor Flat: Lounge, kitchen, bedroom, bathroom
Rear patio/garden area, shared use of rear double garage via gate onto rear access lane
First Floor Flat: Lounge, kitchen, 2 bedrooms, bathroom
Outside:Shared use of rear double garage via gate onto rear access lane

Council Tax Band

A

Tenancies

To be sold with vacant possession

INVESTORS: If you are looking for assistance in tenant find and/or management packages, information on rental income/interest potential we have a Lettings Department that can help you. Please call us or email sarah@paulfoshlettings.com for invaluable advice.

Tenure

Advised Freehold - to be verified by solicitor

Auction Fees And Additional Costs

Auction fees: The sale of each lot is subject to a buyer’s premium/admin fee of 1.5% of the purchase price (subject to a minimum of £1,500 for sale prices between £1 and £50,000 or subject to a minimum of £2,400 for sale prices of £50,001 upwards) including VAT unless otherwise stated.

Additional costs: The purchase of the property may be subject to (but are not limited to), VAT (if applicable), reimbursement of the seller’s search fees, reimbursement of seller’s legal and/or sales costs, stamp duty/land transaction tax (LTT). Please check accompanying legal pack for further details.

* Generally speaking Guide Prices are provided as an indication of each seller's minimum expectation, i.e. 'The Reserve'. They are not necessarily figures which a property will sell for and may change at any time prior to the auction. Virtually every property will be offered subject to a Reserve (a figure below which the Auctioneer cannot sell the property during the auction) which we expect will be set within the Guide Range or no more than 10% above a single figure Guide.

Loading the bidding panel...

Want Auction updates? Sign up here

Viewing

Paul Fosh Auctions
01633 254044

Office Contact

Documents

Related Documents

Auction Finance

As a trusted partner of Paul Fosh Auctions, Together could offer the auction finance you need, when you need it. Visit togethermoney.com for more information.

If considering a mortgage, we advise that you inspect and consider the property carefully with your lender before bidding.

Follow