Waiting for video...
The property is sold subject to Overage Provisions - Please see Transfer Deed
ONLINE AUCTION from 5th MARCH-7th MARCH
An opportunity to acquire a three bedroom detached property with extensive gardens, useful buildings and pasture land extending in all to 1.83 acres.
The property is included within the Local Development Plan as a candidate site and holds significant development potential.
Planning permission has previously been granted in the gardens for an additional three units and also a two bedroom annexe. This has now lapsed but may be of interest to potential developers or those looking for multi generation living.
The property also benefits from hill grazing rights for 10 sheep on the Trefil Las and Twyn Bryn-March Rassau common.
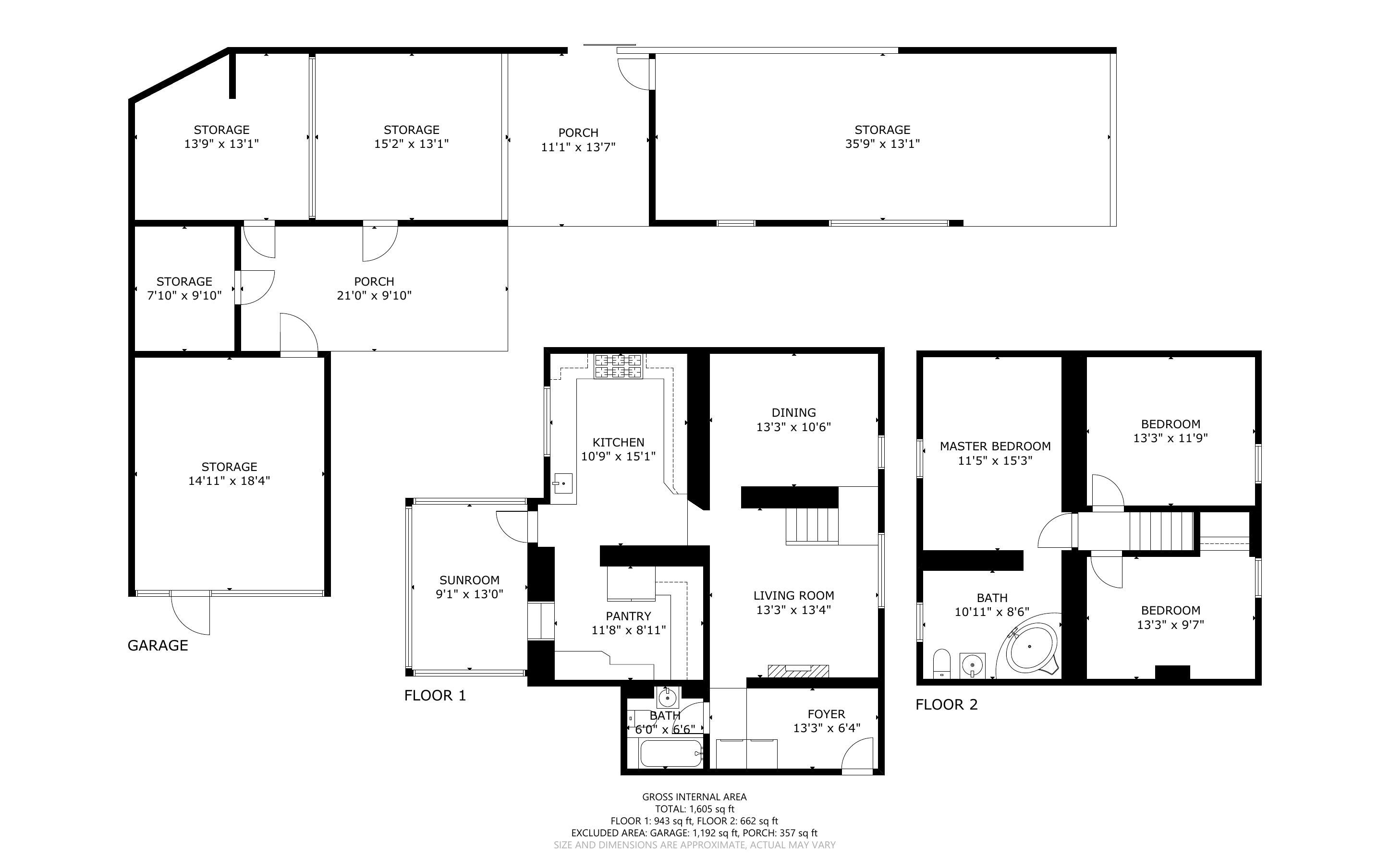
The property itself offers three bedrooms, two reception rooms, traditional kitchen, utility room, conservatory and family bathroom. The gardens surround the property providing lawn space, off road parking as well as extensive vegetable growing patches and an established mixed orchard. The land could also be well suited for horse or sheep grazing.
Located in Ebbw Vale the property offers excellent road links with the A470 (Heads of The Valley) giving access to Abergavenny, West Wales and the M4.
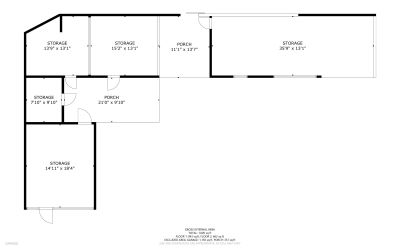
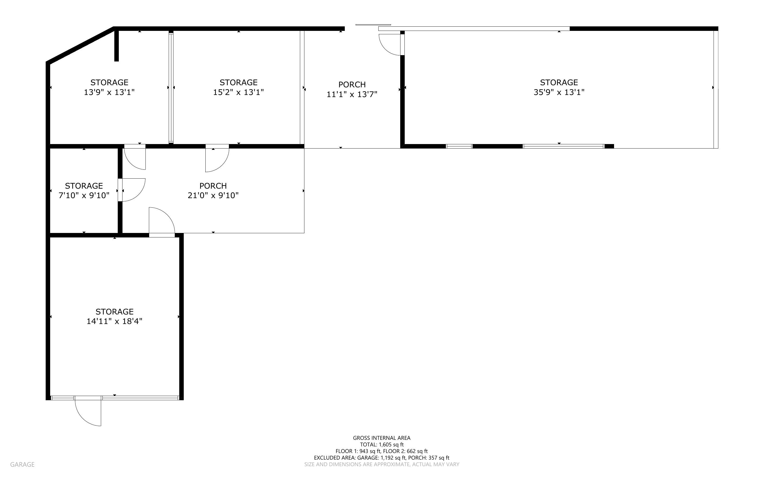
Ground Floor: Entrance foyer, living room, dining room, utility, bathroom, conservatory
First Floor: Three bedrooms, family bathroom
Outside: Various outbuildings (see floor plan), pasture land, vegetable gardens - total of 1.83 acres
To be sold with vacant possession
Advised Freehold - to be verified by solicitor
Auction fees: The sale of each lot is subject to a buyer’s premium/admin fee of 1.5% of the purchase price (subject to a minimum of £1,500 for sale prices between £1 and £50,000 or subject to a minimum of £2,400 for sale prices of £50,001 upwards) including VAT unless otherwise stated.
Additional costs: The purchase of the property may be subject to (but are not limited to), VAT (if applicable), reimbursement of the seller’s search fees, reimbursement of seller’s legal and/or sales costs, stamp duty/land transaction tax (LTT). Please check accompanying legal pack for further details.
* Generally speaking Guide Prices are provided as an indication of each seller's minimum expectation, i.e. 'The Reserve'. They are not necessarily figures which a property will sell for and may change at any time prior to the auction. Virtually every property will be offered subject to a Reserve (a figure below which the Auctioneer cannot sell the property during the auction) which we expect will be set within the Guide Range or no more than 10% above a single figure Guide.
As a trusted partner of Paul Fosh Auctions, Together could offer the auction finance you need, when you need it. Visit togethermoney.com for more information.
If considering a mortgage, we advise that you inspect and consider the property carefully with your lender before bidding.
By setting a proxy bid, the system will automatically bid on your behalf to maintain your position as the highest bidder, up to your proxy bid amount. If you are outbid, you will be notified via email so you can opt to increase your bid if you so choose.
If two of more users place identical bids, the bid that was placed first takes precedence, and this includes proxy bids.
Another bidder placed an automatic proxy bid greater or equal to the bid you have just placed. You will need to bid again to stand a chance of winning.