Waiting for video...
New guide price
ONLINE AUCTION from 5th MARCH-7th MARCH
A rare opportunity to acquire two cottages in the highly sought after village of St Nicholas in the Vale of Glamorgan. The properties would be ideal for an extended family looking for separate accommodation/living space or may offer scope to connect both cottages to create an impressive large residence.
One of the cottages has already benefited from significant improvements, including new kitchen with appliances and modern bathroom suite along with re-plastered and decorated walls, as well as being extended to provide more spacious accommodation. The other cottage offers scope to improve. Both properties benefit from UPVC double glazing and gas central heating (not tested) and the roof was replaced a few years ago.
The properties benefit from generous gardens to the front and side with storage shed and a parking bay for up to 4 cars.
The village of St Nicholas lies to the West of Cardiff and has superb road links to the city centre and the M4 motorway and Cowbridge within the Vale of Glamorgan.
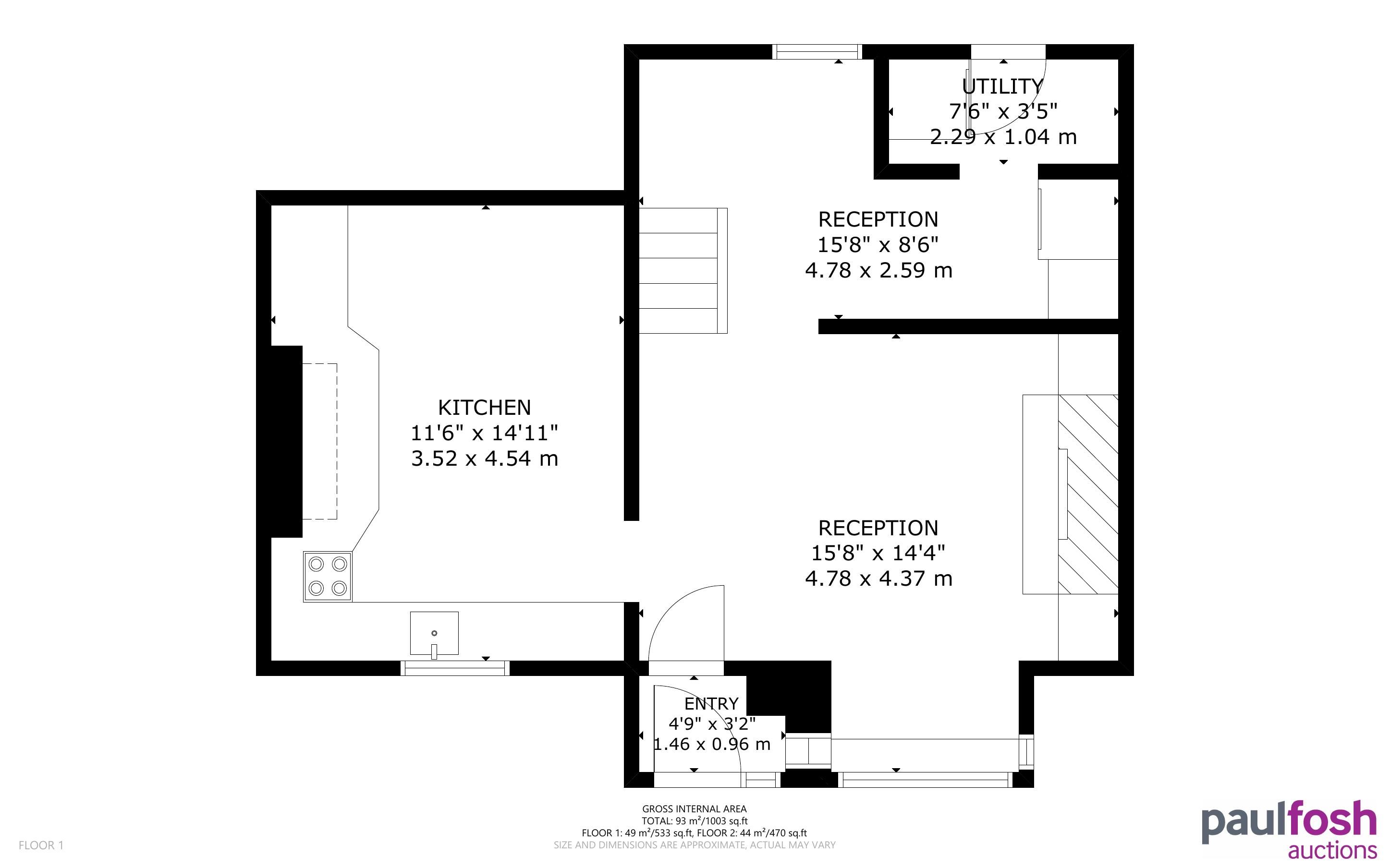
Cottage 1
Ground Floor: Entrance, lounge, kitchen, rear hallway and rear access to garden
First Floor: Landing, 3 bedrooms, bathroom
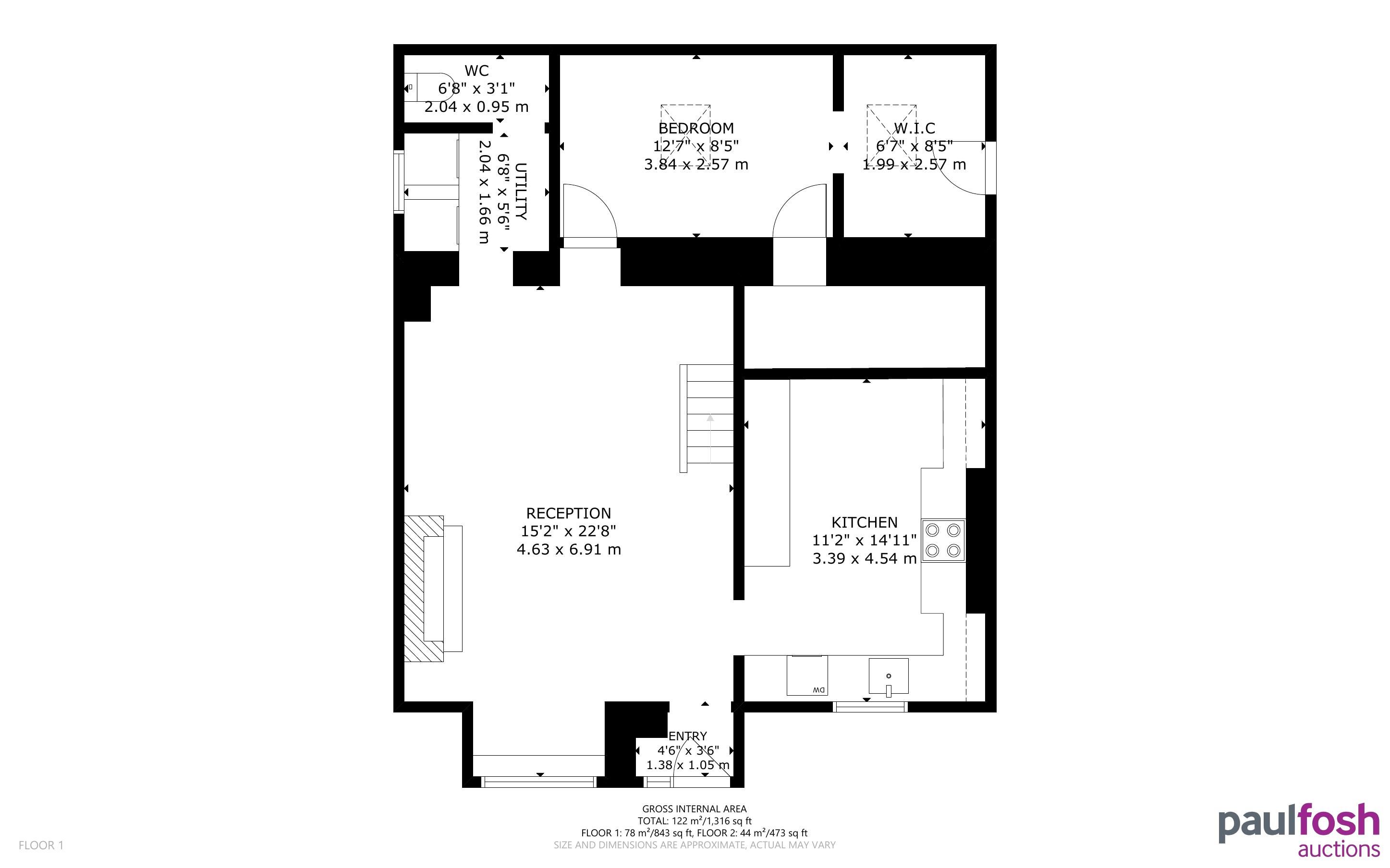
Cottage 2
Ground Floor: Entrance, open plan lounge/dining room, kitchen, bedroom with dressing room
First Floor: Landing, 2 bedrooms, bathroom
Outside: Spacious garden arears to front and side with laid lawn and planted borders and storage shed. Parking bay for up to 4 cars
To be sold with vacant possession
INVESTORS: If you are looking for assistance in tenant find and/or management packages, information on rental income/interest potential we have a Lettings Department that can help you. Please call us or email sarah@paulfoshlettings.com for invaluable advice.
Advised Freehold - to be verified by solicitor
Auction fees: The sale of each lot is subject to a buyer’s premium/admin fee of 1.5% of the purchase price (subject to a minimum of £1,500 for sale prices between £1 and £50,000 or subject to a minimum of £2,400 for sale prices of £50,001 upwards) including VAT unless otherwise stated.
Additional costs: The purchase of the property may be subject to (but are not limited to), VAT (if applicable), reimbursement of the seller’s search fees, reimbursement of seller’s legal and/or sales costs, stamp duty/land transaction tax (LTT). Please check accompanying legal pack for further details.
* Generally speaking Guide Prices are provided as an indication of each seller's minimum expectation, i.e. 'The Reserve'. They are not necessarily figures which a property will sell for and may change at any time prior to the auction. Virtually every property will be offered subject to a Reserve (a figure below which the Auctioneer cannot sell the property during the auction) which we expect will be set within the Guide Range or no more than 10% above a single figure Guide.
As a trusted partner of Paul Fosh Auctions, Together could offer the auction finance you need, when you need it. Visit togethermoney.com for more information.
If considering a mortgage, we advise that you inspect and consider the property carefully with your lender before bidding.
By setting a proxy bid, the system will automatically bid on your behalf to maintain your position as the highest bidder, up to your proxy bid amount. If you are outbid, you will be notified via email so you can opt to increase your bid if you so choose.
If two of more users place identical bids, the bid that was placed first takes precedence, and this includes proxy bids.
Another bidder placed an automatic proxy bid greater or equal to the bid you have just placed. You will need to bid again to stand a chance of winning.