Waiting for video...
ONLINE AUCTION from 5th MARCH-7th MARCH
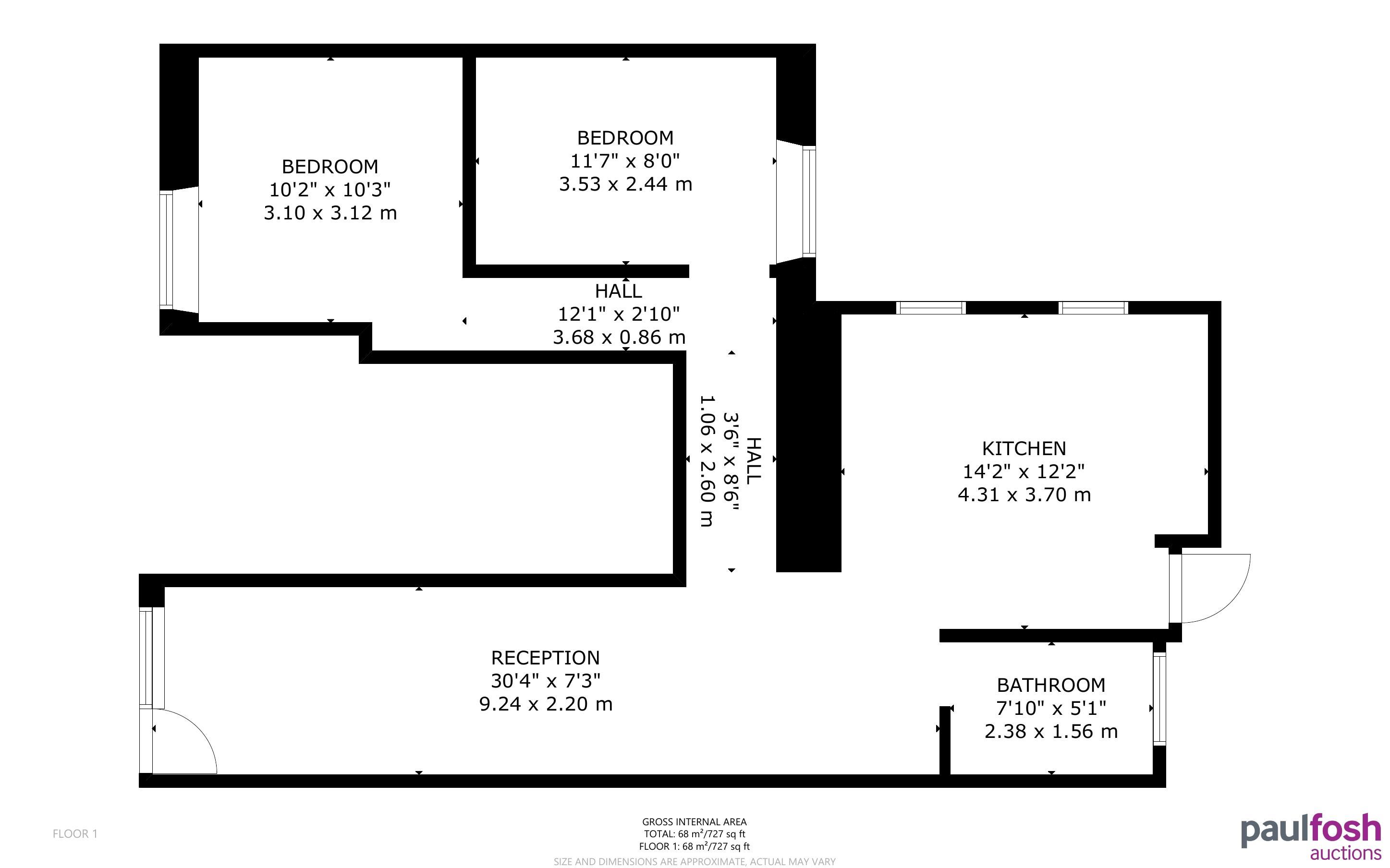
A mid terraced house conversion currently under renovation to provide two flats and a studio flat with parking at the rear. The ground floor flat provides two bedrooms, lounge/dining room, kitchen and bathroom. The first and second floor flat provides three bedrooms, open plan lounge/dining room/kitchen, utility room and bathroom. The basement studio flat with soundproofed ceiling, provides open plan lounge/sleeping/kitchen area and bathroom. The property is to be sold with vacant possession and will be sold as seen. The property is within walking distance of local shops. We anticipate rentals of approximately £750 pcm for the three bed flat, £700 pcm for the two bedroom flat and £525 pcm for the studio flat.
Tonypandy is a town, community and electoral ward located in the county borough of Rhondda Cynon Taf, within the historic county boundaries of Glamorgan, Wales, lying in the Rhondda Fawr Valley.
Tonypandy railway station is a railway station serving the town of Tonypandy in south Wales, located on the Rhondda Line.
Virtual Tour:
Ground Floor Flat Lounge/dining room, kitchen, 2 bedrooms, bathroom
First/Second Floor Flat: Open plan lounge/dining area/kitchen, utility room, 3 bedrooms, bathroom
Basement Studio Flat: Open plan lounge/sleeping/kitchen area, bathroom
Outside: Rear parking area
To be sold with vacant possession
INVESTORS: If you are looking for assistance in tenant find and/or management packages, information on rental income/interest potential we have a Lettings Department that can help you. Please call us or email sarah@paulfoshlettings.com for invaluable advice.
Advised Freehold - to be verified by solicitor
Auction fees: The sale of each lot is subject to a buyer’s premium/admin fee of 1.5% of the purchase price (subject to a minimum of £1,500 for sale prices between £1 and £50,000 or subject to a minimum of £2,400 for sale prices of £50,001 upwards) including VAT unless otherwise stated.
Additional costs: The purchase of the property may be subject to (but are not limited to), VAT (if applicable), reimbursement of the seller’s search fees, reimbursement of seller’s legal and/or sales costs, stamp duty/land transaction tax (LTT). Please check accompanying legal pack for further details.
* Generally speaking Guide Prices are provided as an indication of each seller's minimum expectation, i.e. 'The Reserve'. They are not necessarily figures which a property will sell for and may change at any time prior to the auction. Virtually every property will be offered subject to a Reserve (a figure below which the Auctioneer cannot sell the property during the auction) which we expect will be set within the Guide Range or no more than 10% above a single figure Guide.
As a trusted partner of Paul Fosh Auctions, Together could offer the auction finance you need, when you need it. Visit togethermoney.com for more information.
If considering a mortgage, we advise that you inspect and consider the property carefully with your lender before bidding.
By setting a proxy bid, the system will automatically bid on your behalf to maintain your position as the highest bidder, up to your proxy bid amount. If you are outbid, you will be notified via email so you can opt to increase your bid if you so choose.
If two of more users place identical bids, the bid that was placed first takes precedence, and this includes proxy bids.
Another bidder placed an automatic proxy bid greater or equal to the bid you have just placed. You will need to bid again to stand a chance of winning.