Waiting for video...
Reduced guide price and reserve
ONLINE AUCTION from 5th MARCH-7th MARCH
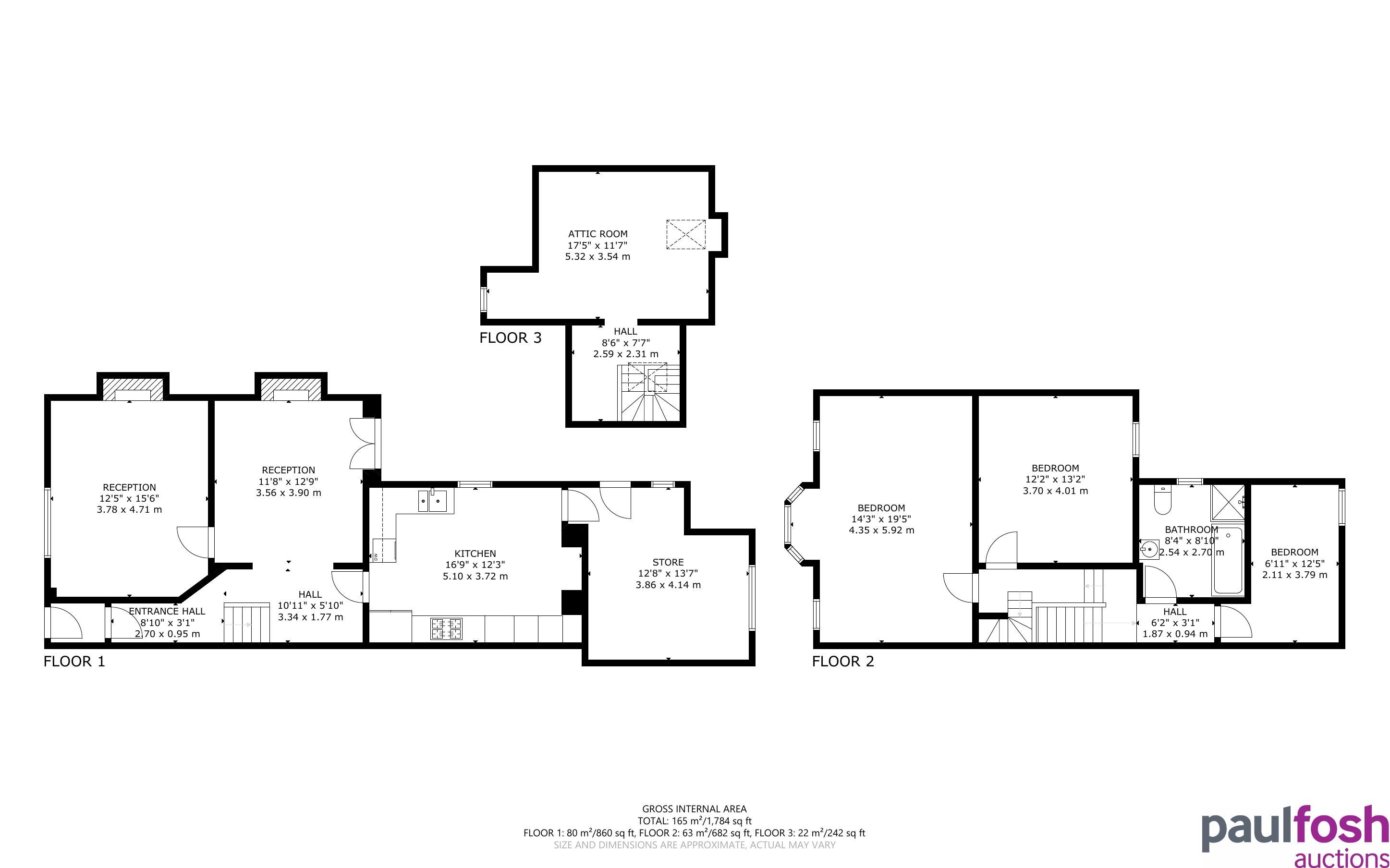
A deceptively spacious 3 storey end of terraced Victorian house with some original features remaining. The property (historically shop premises) provides two reception rooms, kitchen/breakfast room, additional room (requires refurbishment) bathroom and four bedrooms. The rear garden includes an outhouse and outdoor w.c. There is also side access to the neighbouring street. There is double glazing/gas central heating (not tested) The property is to be sold with vacant possession. The property could lend itself to conversion – flats/HMO subject to the necessary consents. In its current layout we anticipate a rental of approximately £825pcm.
Maesteg is a town and community in Bridgend County Borough, Wales. Maesteg lies at the northernmost end of the Llynfi Valley, close to the border with Neath Port Talbot. Maesteg has three railway stations, all on the Maesteg Line. Services are operated by Transport for Wales and run directly to Cardiff Central via Bridgend and usually continue to Cheltenham Spa via Newport and Gloucester with one early morning service to Ebbw Vale Town. Regeneration in the area has begun following planning consent in November 2022 for the dramatically placed, Wildfox Resorts Afan Valley which will create a hub of adventure activity at scale and strengthen South Wales’ visitor destination economy, building upon existing world-class attractions. The socio-economic opportunities are transformational, creating over 1,000 jobs in construction and 1,000 in operation.
Virtual Tour:
Ground Floor: Lounge, dining room, kitchen/breakfast room, rear room (requires refurbishment)
First Floor: 3 bedrooms, 4 piece bathroom
Second Floor: Landing area, bedroom
Outside: Rear garden with side access, outhouse, wc
C
To be sold with vacant possession
INVESTORS:If you are looking for assistance in tenant find and/or management packages, information on rental income/interest potential we have a Lettings Department that can help you. Please call us or email sarah@paulfoshlettings.com for invaluable advice.
Advised Freehold - to be verified by solicitor
Auction fees: The sale of each lot is subject to a buyer’s premium/admin fee of 1.5% of the purchase price (subject to a minimum of £1,500 for sale prices between £1 and £50,000 or subject to a minimum of £2,400 for sale prices of £50,001 upwards) including VAT unless otherwise stated.
Additional costs: The purchase of the property may be subject to (but are not limited to), VAT (if applicable), reimbursement of the seller’s search fees, reimbursement of seller’s legal and/or sales costs, stamp duty/land transaction tax (LTT). Please check accompanying legal pack for further details.
* Generally speaking Guide Prices are provided as an indication of each seller's minimum expectation, i.e. 'The Reserve'. They are not necessarily figures which a property will sell for and may change at any time prior to the auction. Virtually every property will be offered subject to a Reserve (a figure below which the Auctioneer cannot sell the property during the auction) which we expect will be set within the Guide Range or no more than 10% above a single figure Guide.
As a trusted partner of Paul Fosh Auctions, Together could offer the auction finance you need, when you need it. Visit togethermoney.com for more information.
If considering a mortgage, we advise that you inspect and consider the property carefully with your lender before bidding.
By setting a proxy bid, the system will automatically bid on your behalf to maintain your position as the highest bidder, up to your proxy bid amount. If you are outbid, you will be notified via email so you can opt to increase your bid if you so choose.
If two of more users place identical bids, the bid that was placed first takes precedence, and this includes proxy bids.
Another bidder placed an automatic proxy bid greater or equal to the bid you have just placed. You will need to bid again to stand a chance of winning.