Waiting for video...
ONLINE AUCTION from 12th DECEMBER-14th DECEMBER
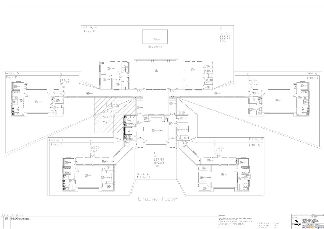
A listed school building comprising of five, self-contained classroom blocks, the building was architecturally designed to make best use of natural light. The five classrooms form separate blocks, each with its own classroom facilities. The blocks all contain independent entrances but are also connected to the main assembly hall by corridors and covered walkways. Subject to the relevant consents the building may lend itself to further development. Alternative uses may include but are not limited to, five independent bungalows, assisted living accommodation, office space, a leisure facility for a dance studio, gym, yoga studio.
To the front of the property is a large car park with children’s playground, to the rear of the property is the former playing fields being a large parcel of sloping land of which the majority is well maintained grass. Additionally, there is a small tree covered area to the rear of the site and a further area of land used previously for grazing. Subject to the relevant consents, the land may lend itself to further development.
Location
Situated in the scenic market town of Welshpool, this ideally located close to the Welsh/ English border and provides good transport links. The town is well located to allow access to the A483 and A458 and the national motorway network. The property is located within 20 minutes walk of Welshpool station, providing good connections to Wales and the rest of the UK.
The site is positioned in an elevated location and offers scenic, panoramic views over the town of Welshpool and beyond and extend to over 4 acres.
Services
The property benefits from water and electric (not tested).
VAT
We have been advised that no VAT is applicable on the sale of this property.
| Floor | Area Sq Ft | Area Sq M |
|---|---|---|
| Ground Floor | 11162.18 | 1037 |
| Lower Ground Floor/Basement | 301.39 | 28 |
To be sold with vacant possession
Advised Freehold - to be verified by solicitor
Auction fees: The sale of each lot is subject to a buyer’s premium/admin fee of 1.5% of the purchase price (subject to a minimum of £1,500 for sale prices between £1 and £50,000 or subject to a minimum of £2,400 for sale prices of £50,001 upwards) including VAT unless otherwise stated.
Additional costs: The purchase of the property may be subject to (but are not limited to), VAT (if applicable), reimbursement of the seller’s search fees, reimbursement of seller’s legal and/or sales costs, stamp duty/land transaction tax (LTT). Please check accompanying legal pack for further details.
* Generally speaking Guide Prices are provided as an indication of each seller's minimum expectation, i.e. 'The Reserve'. They are not necessarily figures which a property will sell for and may change at any time prior to the auction. Virtually every property will be offered subject to a Reserve (a figure below which the Auctioneer cannot sell the property during the auction) which we expect will be set within the Guide Range or no more than 10% above a single figure Guide.
As a trusted partner of Paul Fosh Auctions, Together could offer the auction finance you need, when you need it. Visit togethermoney.com for more information.
If considering a mortgage, we advise that you inspect and consider the property carefully with your lender before bidding.
By setting a proxy bid, the system will automatically bid on your behalf to maintain your position as the highest bidder, up to your proxy bid amount. If you are outbid, you will be notified via email so you can opt to increase your bid if you so choose.
If two of more users place identical bids, the bid that was placed first takes precedence, and this includes proxy bids.
Another bidder placed an automatic proxy bid greater or equal to the bid you have just placed. You will need to bid again to stand a chance of winning.