Waiting for video...
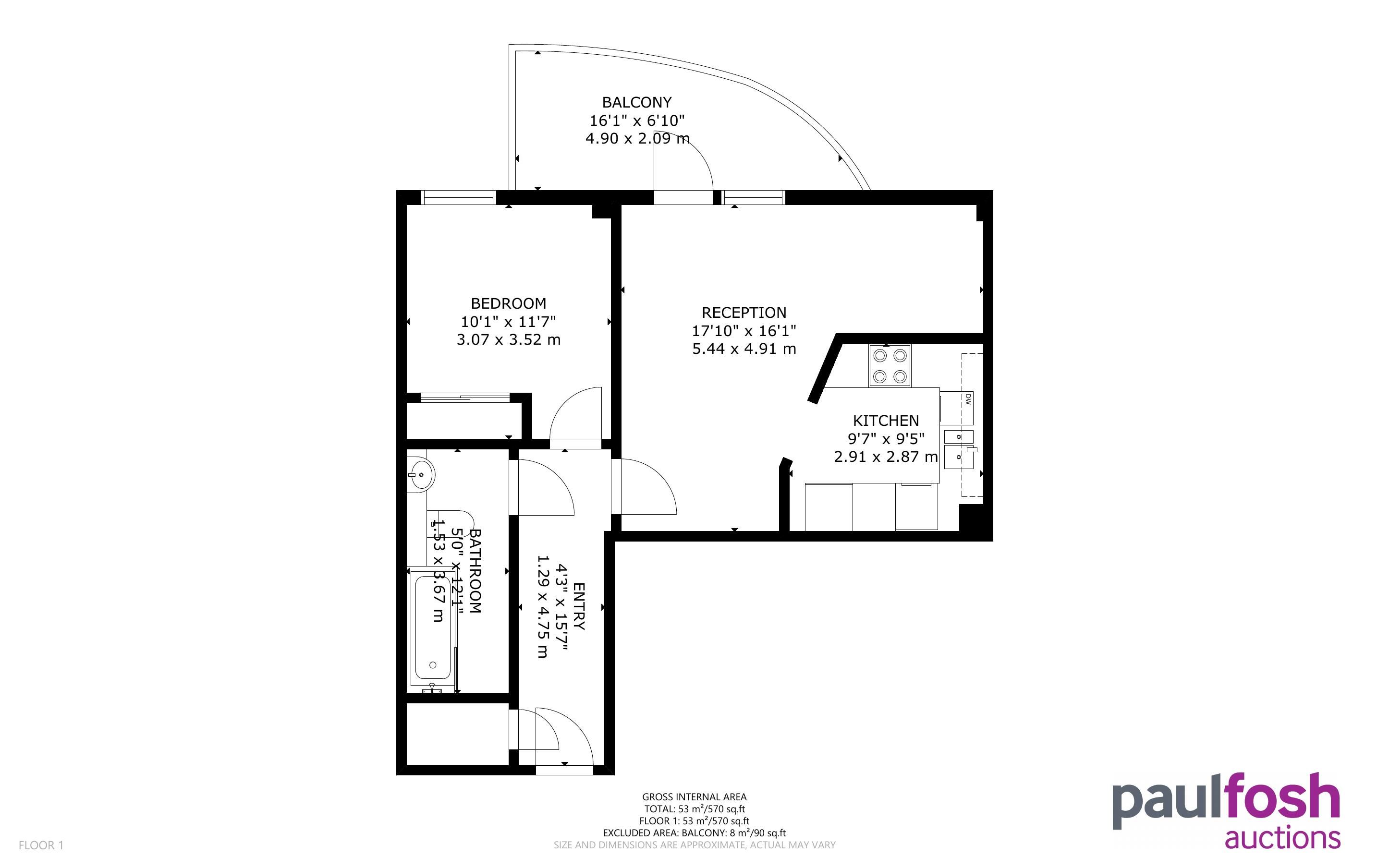
Situated in a modern block within Cardiff Bay and next to the marina is this 5th floor apartment. The property provides an open plan lounge/dining and study area with balcony overlooking marina, kitchen, bathroom and bedroom with built-in wardrobe plus boiler/storage cupboard and entry phone system. There is allocated and visitor gated parking, concierge office, lift facility and private entrance to the marina. Excellent transport links via the M4. We have been informed by the Vendor that the developers – Taylor Wimpey have confirmed that cladding corrective works will be carried out by them at no cost to leaseholders - please refer to the legal pack for confirmation. The property will be sold with vacant possession and would make a great investment with an estimated rental of £900 pcm.
Cardiff Bay is an area and freshwater lake in Cardiff, Wales. The site of a former tidal bay and estuary, the body of water was converted into a 500-acre (2.0 km2) lake as part of a UK Government redevelopment project. This is a great place to live, with activities including Cardiff sailing/water sports centre, Wetland Reserve, Barrage, Style-conscious shops, bars and restaurants at Mermaid Quay, retail park, The Red Dragon entertainment centre and International sports centre including ice rink and pool.
Virtual Tour:
Fifth Floor: Open plan lounge, dining/study area, kitchen, bathroom, bedroom
Outside: Allocated and visitor gated parking, private entry to the Marina, concierge office
Service Charge: TBC - refer to legal pack
Ground Rent: £100 per annum - refer to legal pack
Lease: Remaining 108 years - refer to legal pack
D
To be sold with vacant possession
INVESTORS: If you are looking for assistance in tenant find and/or management packages, information on rental income/interest potential we have a Lettings Department that can help you. Please call us or email sarah@paulfoshlettings.com for invaluable advice.
Advised Leasehold - to be verified by solicitor
Auction fees: The sale of each lot is subject to a buyer’s premium/admin fee of 1.5% of the purchase price (subject to a minimum of £1,500 for sale prices between £1 and £50,000 or subject to a minimum of £2,400 for sale prices of £50,001 upwards) including VAT unless otherwise stated.
Additional costs: The purchase of the property may be subject to (but are not limited to), VAT (if applicable), reimbursement of the seller’s search fees, reimbursement of seller’s legal and/or sales costs, stamp duty/land transaction tax (LTT). Please check accompanying legal pack for further details.
* Generally speaking Guide Prices are provided as an indication of each seller's minimum expectation, i.e. 'The Reserve'. They are not necessarily figures which a property will sell for and may change at any time prior to the auction. Virtually every property will be offered subject to a Reserve (a figure below which the Auctioneer cannot sell the property during the auction) which we expect will be set within the Guide Range or no more than 10% above a single figure Guide.
As a trusted partner of Paul Fosh Auctions, Together could offer the auction finance you need, when you need it. Visit togethermoney.com for more information.
If considering a mortgage, we advise that you inspect and consider the property carefully with your lender before bidding.
By setting a proxy bid, the system will automatically bid on your behalf to maintain your position as the highest bidder, up to your proxy bid amount. If you are outbid, you will be notified via email so you can opt to increase your bid if you so choose.
If two of more users place identical bids, the bid that was placed first takes precedence, and this includes proxy bids.
Another bidder placed an automatic proxy bid greater or equal to the bid you have just placed. You will need to bid again to stand a chance of winning.