Waiting for video...
ONLINE AUCTION from 12th DECEMBER-14th DECEMBER
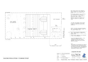
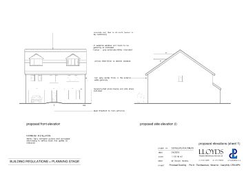
Located in the highly desirable scenic and peaceful Waterloo area of Machen being surrounded by open countryside, this plot with full planning consent, sits within in a no through road of detached executive houses and offers an excellent return given the value of surrounding properties. The land has been cleared for development and backs on to a wooded area with open countryside beyond. The planning is for a 4 bedroom, 2 bathroom detached house with open plan kitchen/dining/living area, further reception room and utility room. Outside offers parking for two cars, integral garage and front and rear gardens.
Machen is a large village three miles east of Caerphilly, south Wales. It is situated in the Caerphilly borough within the historic boundaries of Monmouthshire. It neighbours Bedwas and Trethomas. It lies on the Rhymney River. Mynydd Machen (Machen Mountain) provides a view over the village. Caerphilly is approximately 4.5 miles away with the City of Newport being just under 7 miles away. Excellent transport links via the M4.
Planning: Full planning permission has been granted for one 4 bedroom detached house.
Planning Ref: 19/0395/full
Granted: 10/07/2019
Please contact Caerphilly County Borough Council for further information
To be sold with vacant possession
Advised Freehold - to be verified by solicitor
Auction fees: The sale of each lot is subject to a buyer’s premium/admin fee of 1.5% of the purchase price (subject to a minimum of £1,500 for sale prices between £1 and £50,000 or subject to a minimum of £2,400 for sale prices of £50,001 upwards) including VAT unless otherwise stated.
Additional costs: The purchase of the property may be subject to (but are not limited to), VAT (if applicable), reimbursement of the seller’s search fees, reimbursement of seller’s legal and/or sales costs, stamp duty/land transaction tax (LTT). Please check accompanying legal pack for further details.
* Generally speaking Guide Prices are provided as an indication of each seller's minimum expectation, i.e. 'The Reserve'. They are not necessarily figures which a property will sell for and may change at any time prior to the auction. Virtually every property will be offered subject to a Reserve (a figure below which the Auctioneer cannot sell the property during the auction) which we expect will be set within the Guide Range or no more than 10% above a single figure Guide.
As a trusted partner of Paul Fosh Auctions, Together could offer the auction finance you need, when you need it. Visit togethermoney.com for more information.
If considering a mortgage, we advise that you inspect and consider the property carefully with your lender before bidding.
By setting a proxy bid, the system will automatically bid on your behalf to maintain your position as the highest bidder, up to your proxy bid amount. If you are outbid, you will be notified via email so you can opt to increase your bid if you so choose.
If two of more users place identical bids, the bid that was placed first takes precedence, and this includes proxy bids.
Another bidder placed an automatic proxy bid greater or equal to the bid you have just placed. You will need to bid again to stand a chance of winning.