Waiting for video...
ONLINE AUCTION from 12th DECEMBER - 14th DECEMBER
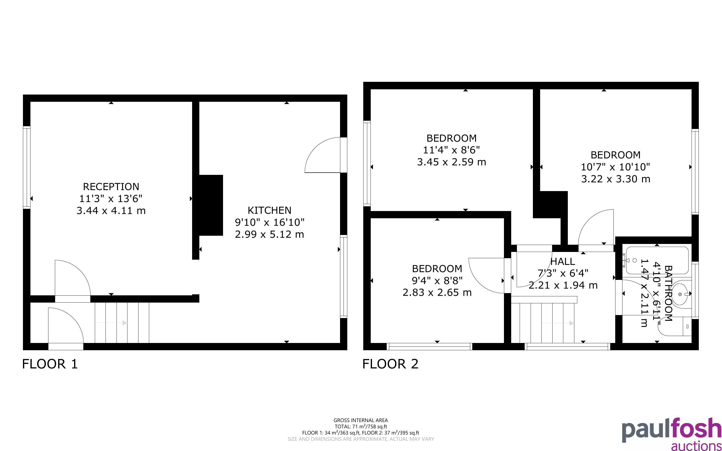
An end of terraced house set on a corner plot and benefitting from gated off road parking. The property has been part renovated with some new plaster boarding and will be sold as seen. Accommodation includes lounge, kitchen/dining room area, bathroom and three bedrooms (originally 2). The rear garden (overgrown) includes two sheds and access to the side and front of the property. There is also a long strip of garden to the side of the property.
Gurnos is a community of Merthyr Tydfil County Borough in Wales, United Kingdom. It consists principally of the Gurnos Estate. The Gurnos estate includes a main small shopping centre at Chestnut Way, known locally as The Gurnos Shops, a social club ( The Gurnos Club), and a community centre, all located within a few yards of each other.
Virtual Tour:
Ground Floor: Lounge, kitchen/dining room area
First Floor: 3 bedrooms (originally 2), bathroom
Outside: Rear garden (overgrown) with side access, two sheds, long strip of garden to the side, gated off road parking to the front
A
To be sold with vacant possession. We anticipate a rental of approximately £700pcm.
Investors: If you are looking for assistance in tenant find and/or management packages, information on rental income/interest potential we have a Lettings Department that can help you. Please call us or email sarah@paulfoshauctions.com for invaluable advice.
Advised Freehold - to be verified by solicitor
Auction fees: The sale of each lot is subject to a buyer’s premium/admin fee of 1.5% of the purchase price (subject to a minimum of £1,500 for sale prices between £1 and £50,000 or subject to a minimum of £2,400 for sale prices of £50,001 upwards) including VAT unless otherwise stated.
Additional costs: The purchase of the property may be subject to (but are not limited to), VAT (if applicable), reimbursement of the seller’s search fees, reimbursement of seller’s legal and/or sales costs, stamp duty/land transaction tax (LTT). Please check accompanying legal pack for further details.
* Generally speaking Guide Prices are provided as an indication of each seller's minimum expectation, i.e. 'The Reserve'. They are not necessarily figures which a property will sell for and may change at any time prior to the auction. Virtually every property will be offered subject to a Reserve (a figure below which the Auctioneer cannot sell the property during the auction) which we expect will be set within the Guide Range or no more than 10% above a single figure Guide.
As a trusted partner of Paul Fosh Auctions, Together could offer the auction finance you need, when you need it. Visit togethermoney.com for more information.
If considering a mortgage, we advise that you inspect and consider the property carefully with your lender before bidding.
By setting a proxy bid, the system will automatically bid on your behalf to maintain your position as the highest bidder, up to your proxy bid amount. If you are outbid, you will be notified via email so you can opt to increase your bid if you so choose.
If two of more users place identical bids, the bid that was placed first takes precedence, and this includes proxy bids.
Another bidder placed an automatic proxy bid greater or equal to the bid you have just placed. You will need to bid again to stand a chance of winning.