Waiting for video...
ONLINE AUCTION from 3rd OCTOBER-5th OCTOBER
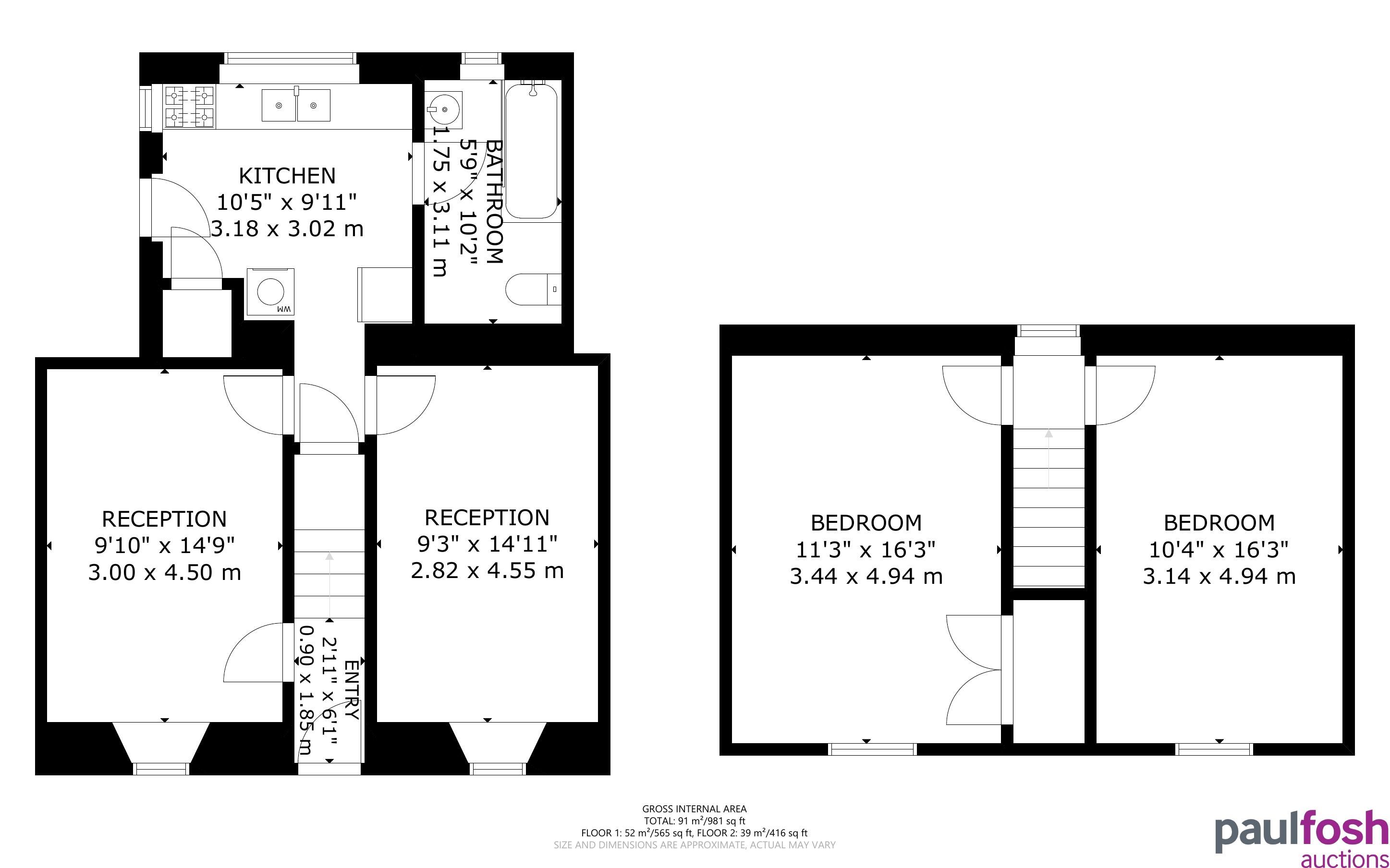
An end of terraced double fronted house in a popular location with far reaching hillside views. We have not inspected the property but the vendor confirms the property provides two reception rooms, kitchen, bathroom , two bedrooms and basement room along with a rear garden. The property is to be sold with tenant in situ who would like to stay and currently pays £500 pcm.
Pontardawe is a town and a community in the Swansea Valley in Wales forming part of the country borough of Neath Port Talbot. Pontardawe also has a primary school. Pontardawe is at the crossroads of the A474 road and the A4067 road. The National Cycle Route 43 from Swansea to Builth Wells passes through the town and the recreation ground.
Virtual Tour:
Ground Floor: Lounge, dining room, kitchen, bathroom
First Floor: 2 bedrooms
Lower Ground Floor: basement room
Outside: Rear garden
B
To be sold with tenant in situ
The property is let at £500 pcm (£6000 p/a)
INVESTORS: If you are looking for assistance in tenant find and/or management packages, information on rental income/interest potential, we have a Lettings Department that can help you. Please call us on 01633 746800 or email sarah@paulfoshlettings.com for invaluable advice.
Advised Freehold - to be verified by solicitor
Auction fees: The sale of each lot is subject to a buyer’s premium/admin fee of 1.5% of the purchase price (subject to a minimum of £1,500 for sale prices between £1 and £50,000 or subject to a minimum of £2,400 for sale prices of £50,001 upwards) including VAT unless otherwise stated.
Additional costs: The purchase of the property may be subject to (but are not limited to), VAT (if applicable), reimbursement of the seller’s search fees, reimbursement of seller’s legal and/or sales costs, stamp duty/land transaction tax (LTT). Please check accompanying legal pack for further details.
* Generally speaking Guide Prices are provided as an indication of each seller's minimum expectation, i.e. 'The Reserve'. They are not necessarily figures which a property will sell for and may change at any time prior to the auction. Virtually every property will be offered subject to a Reserve (a figure below which the Auctioneer cannot sell the property during the auction) which we expect will be set within the Guide Range or no more than 10% above a single figure Guide.
As a trusted partner of Paul Fosh Auctions, Together could offer the auction finance you need, when you need it. Visit togethermoney.com for more information.
If considering a mortgage, we advise that you inspect and consider the property carefully with your lender before bidding.
By setting a proxy bid, the system will automatically bid on your behalf to maintain your position as the highest bidder, up to your proxy bid amount. If you are outbid, you will be notified via email so you can opt to increase your bid if you so choose.
If two of more users place identical bids, the bid that was placed first takes precedence, and this includes proxy bids.
Another bidder placed an automatic proxy bid greater or equal to the bid you have just placed. You will need to bid again to stand a chance of winning.