Waiting for video...
ONLINE AUCTION from 3rd OCTOBER-5th OCTOBER
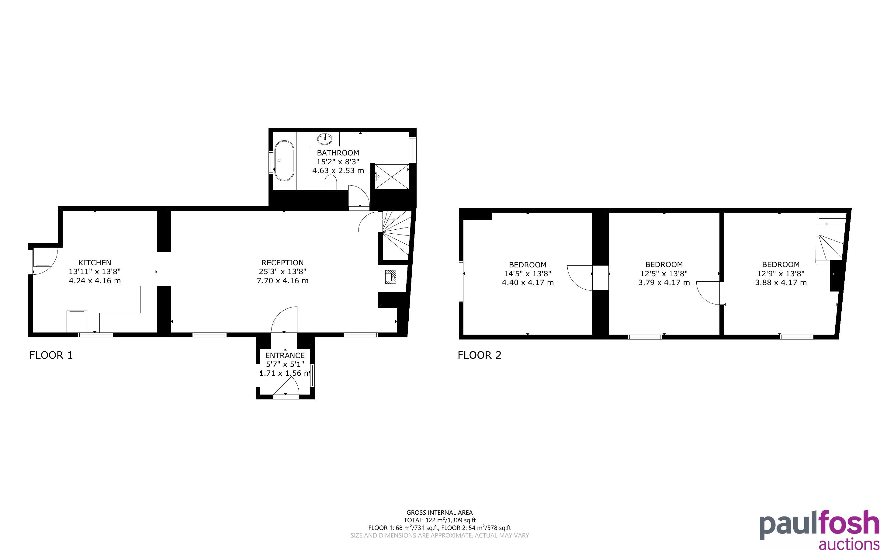
A character cottage that has been extended (ground and first floor) and partly renovated but requires completion works including drainage to the property. Situated close to the Glamorgan Heritage Coastline the accommodation includes open plan lounge/dining area, kitchen/breakfast room and bath/shower room. To the first floor is a bedroom leading to two further rooms. The lawned garden includes two sheds and a tree house plus off road parking.
The property is to be sold as seen with vacant possession. The property would lend itself to a holiday home or let due to the tourism in the area. We anticipate a rental of approximately £1,250 pcm.
Marcross is a small village in the rural community of St Donats in the Vale of Glamorgan, south Wales. It consists of a public house (the Horseshoe Inn) and a few scattered houses, farms, and a small medieval church in the centre of the village. Marcross lies close to the Glamorgan Heritage Coastline and Nash Point Lighthouse a grade ll listed building and beach.
Virtual Tour:
Ground Floor: Lounge/dining room, kitchen/breakfast room, bath/shower room (toilet not installed)
First Floor: 1 bedroom, 2 further rooms
Outside: outside, garden with two sheds, tree house, off road parking
To be sold with vacant possession
INVESTORS: If you are looking for assistance in tenant find and/or management packages, information on rental income/interest potential we have a Lettings Department that can help you. Please call us or email sarah@paulfoshlettings.com for invaluable advice
Advised Freehold - to be verified by solicitor
Auction fees: The sale of each lot is subject to a buyer’s premium/admin fee of 1.5% of the purchase price (subject to a minimum of £1,500 for sale prices between £1 and £50,000 or subject to a minimum of £2,400 for sale prices of £50,001 upwards) including VAT unless otherwise stated.
Additional costs: The purchase of the property may be subject to (but are not limited to), VAT (if applicable), reimbursement of the seller’s search fees, reimbursement of seller’s legal and/or sales costs, stamp duty/land transaction tax (LTT). Please check accompanying legal pack for further details.
* Generally speaking Guide Prices are provided as an indication of each seller's minimum expectation, i.e. 'The Reserve'. They are not necessarily figures which a property will sell for and may change at any time prior to the auction. Virtually every property will be offered subject to a Reserve (a figure below which the Auctioneer cannot sell the property during the auction) which we expect will be set within the Guide Range or no more than 10% above a single figure Guide.
As a trusted partner of Paul Fosh Auctions, Together could offer the auction finance you need, when you need it. Visit togethermoney.com for more information.
If considering a mortgage, we advise that you inspect and consider the property carefully with your lender before bidding.
By setting a proxy bid, the system will automatically bid on your behalf to maintain your position as the highest bidder, up to your proxy bid amount. If you are outbid, you will be notified via email so you can opt to increase your bid if you so choose.
If two of more users place identical bids, the bid that was placed first takes precedence, and this includes proxy bids.
Another bidder placed an automatic proxy bid greater or equal to the bid you have just placed. You will need to bid again to stand a chance of winning.