Waiting for video...
ONLINE AUCTION from 29th AUGUST-31st AUGUST
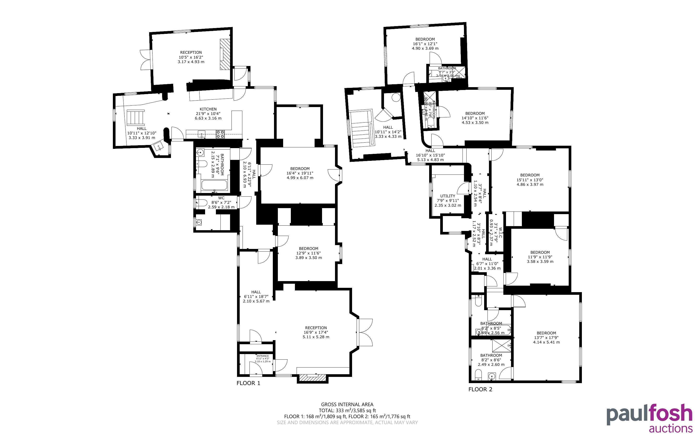
A versatile and spacious detached house situated in a popular location with far reaching countryside views. The renovated property, with a total floor area of 3221 sq ft, offers five reception rooms, feature kitchen/breakfast room, six bathrooms/en-suites, 5 bedrooms and laundry room and offers potential to convert to a 7 bedroom HMO or Care Home (subject to necessary planning consents). The established private garden includes courtyard and lawn. There are two parking areas providing ample parking. Good transport links via the A472 and Hengoed train station. The property is to be sold with vacant possession.
Blackwood is a bustling town, on the Sirhowy River in the South Wales Valleys, Caerphilly County Borough. The town houses a growing number of light industrial and high-tech firms. It is the home town of influential rock band Manic Street Preachers.
Virtual Tour:
Ground Floor: 5 reception rooms, kitchen/breakfast room, bathroom, cloakroom
First Floor: 5 bedrooms, 3 en-suites, bathroom, laundry room/utility room
Outside: Rear lawned garden with side access, courtyard area, 2 parking areas
F
To be sold with vacant possession
INVESTORS: If you are looking for assistance in tenant find and/or management packages, information on rental income/interest potential we have a Lettings Department that can help you. Please call us or email sarah@paulfoshlettings.com for invaluable advice.
Advised Freehold - to be verified by solicitor
Auction fees: The sale of each lot is subject to a buyer’s premium/admin fee of 1.5% of the purchase price (subject to a minimum of £1,500 for sale prices between £1 and £50,000 or subject to a minimum of £2,400 for sale prices of £50,001 upwards) including VAT unless otherwise stated.
Additional costs: The purchase of the property may be subject to (but are not limited to), VAT (if applicable), reimbursement of the seller’s search fees, reimbursement of seller’s legal and/or sales costs, stamp duty/land transaction tax (LTT). Please check accompanying legal pack for further details.
* Generally speaking Guide Prices are provided as an indication of each seller's minimum expectation, i.e. 'The Reserve'. They are not necessarily figures which a property will sell for and may change at any time prior to the auction. Virtually every property will be offered subject to a Reserve (a figure below which the Auctioneer cannot sell the property during the auction) which we expect will be set within the Guide Range or no more than 10% above a single figure Guide.
As a trusted partner of Paul Fosh Auctions, Together could offer the auction finance you need, when you need it. Visit togethermoney.com for more information.
If considering a mortgage, we advise that you inspect and consider the property carefully with your lender before bidding.
By setting a proxy bid, the system will automatically bid on your behalf to maintain your position as the highest bidder, up to your proxy bid amount. If you are outbid, you will be notified via email so you can opt to increase your bid if you so choose.
If two of more users place identical bids, the bid that was placed first takes precedence, and this includes proxy bids.
Another bidder placed an automatic proxy bid greater or equal to the bid you have just placed. You will need to bid again to stand a chance of winning.