Waiting for video...
ONLINE AUCTION from 29th AUGUST-31st AUGUST
A substantial freehold building comprising a ground floor restaurant/bar & four flats above. The restaurant is sold with vacant possession but was previously let at £20k p/a whereas the flats are let with an annual income of £20,940.
The restaurant has been refurbished in a modern contemporary style to a high standard and previously traded at a tapas bar but would suit other potential types of restaurants/bar use.
The property is situated in a prominent position in Port Talbot town centre close to other hospitality businesses, shops and amenities and just a short distance from the train station.
Virtual Tour:
A
| Floor | Description | Rent |
|---|---|---|
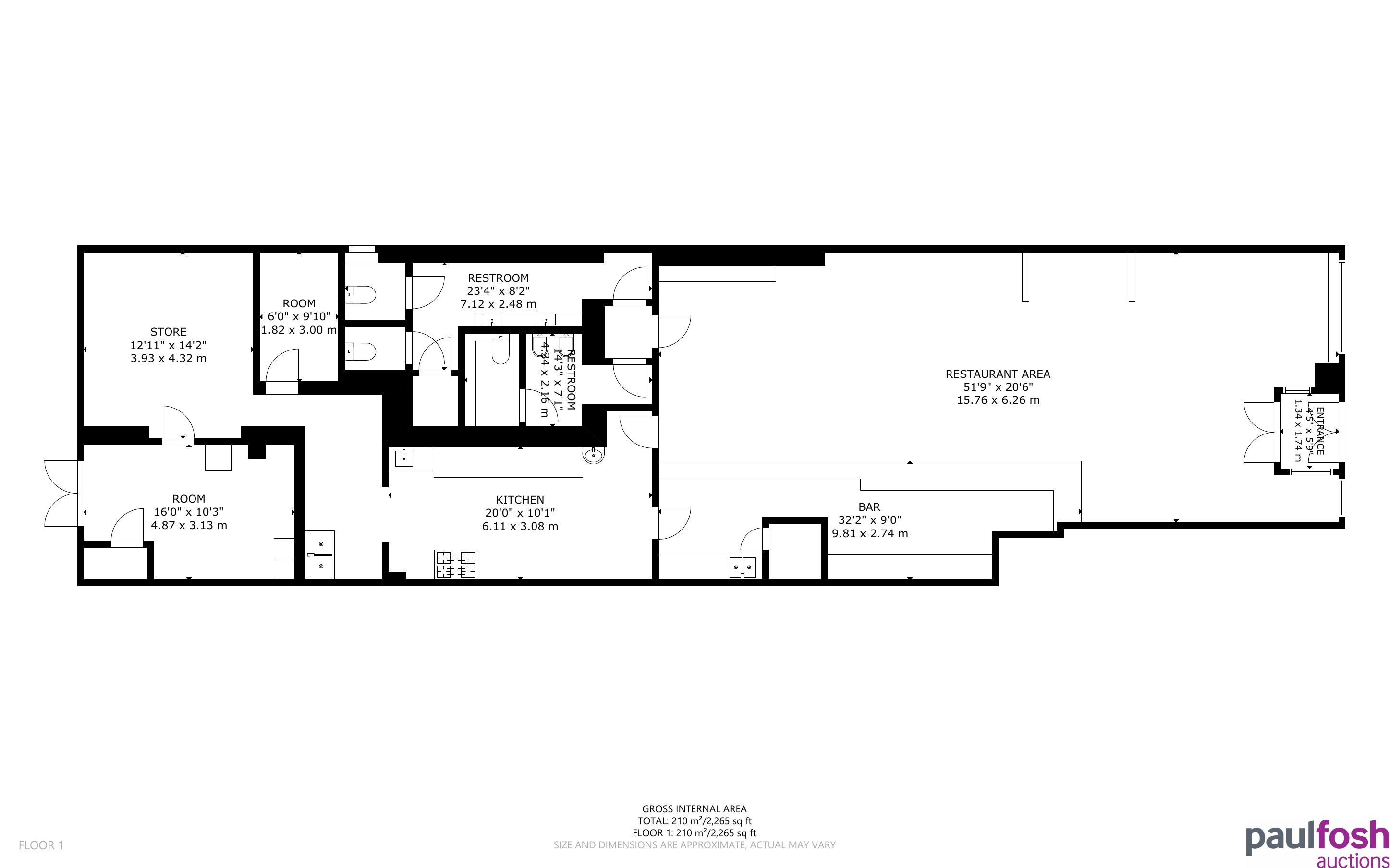
| Ground Floor | Restaurant & bar area with seats for 60 and ladies and gents w.c, kitchen prep area office/store and cellar approx. 2oo sq metres | |
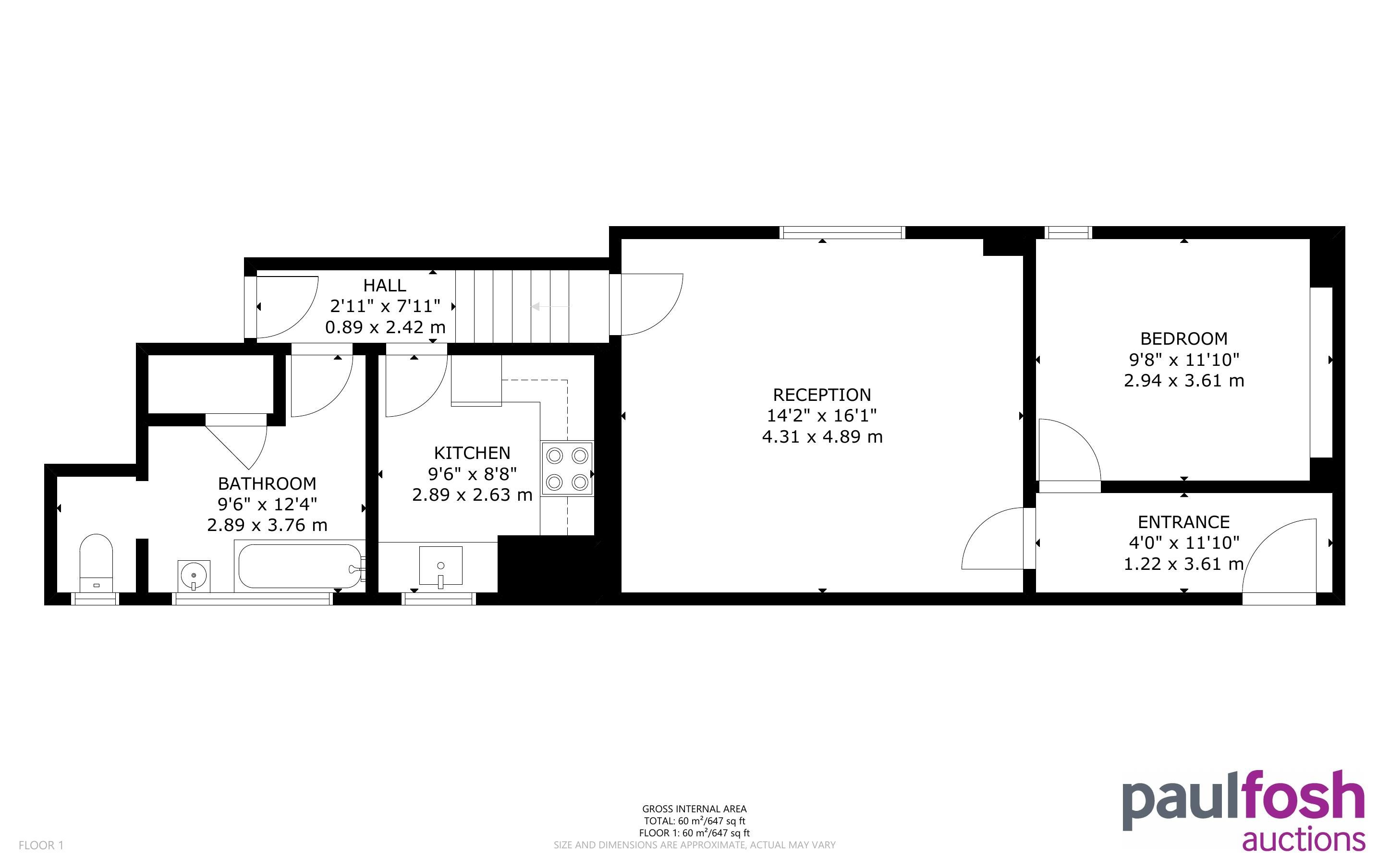
| First Floor | Flat B (studio) - Entrance, lounge/bedroom, kitchen, bathroom | £400 pcm |
| First Floor | Flat C - Entrance hall, bedroom, lounge, kitchen, bathroom | £450 pcm |
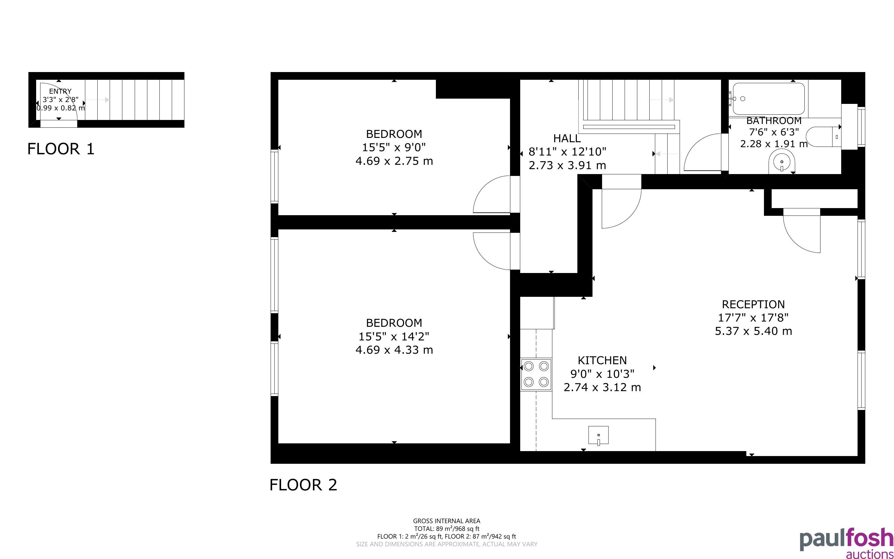
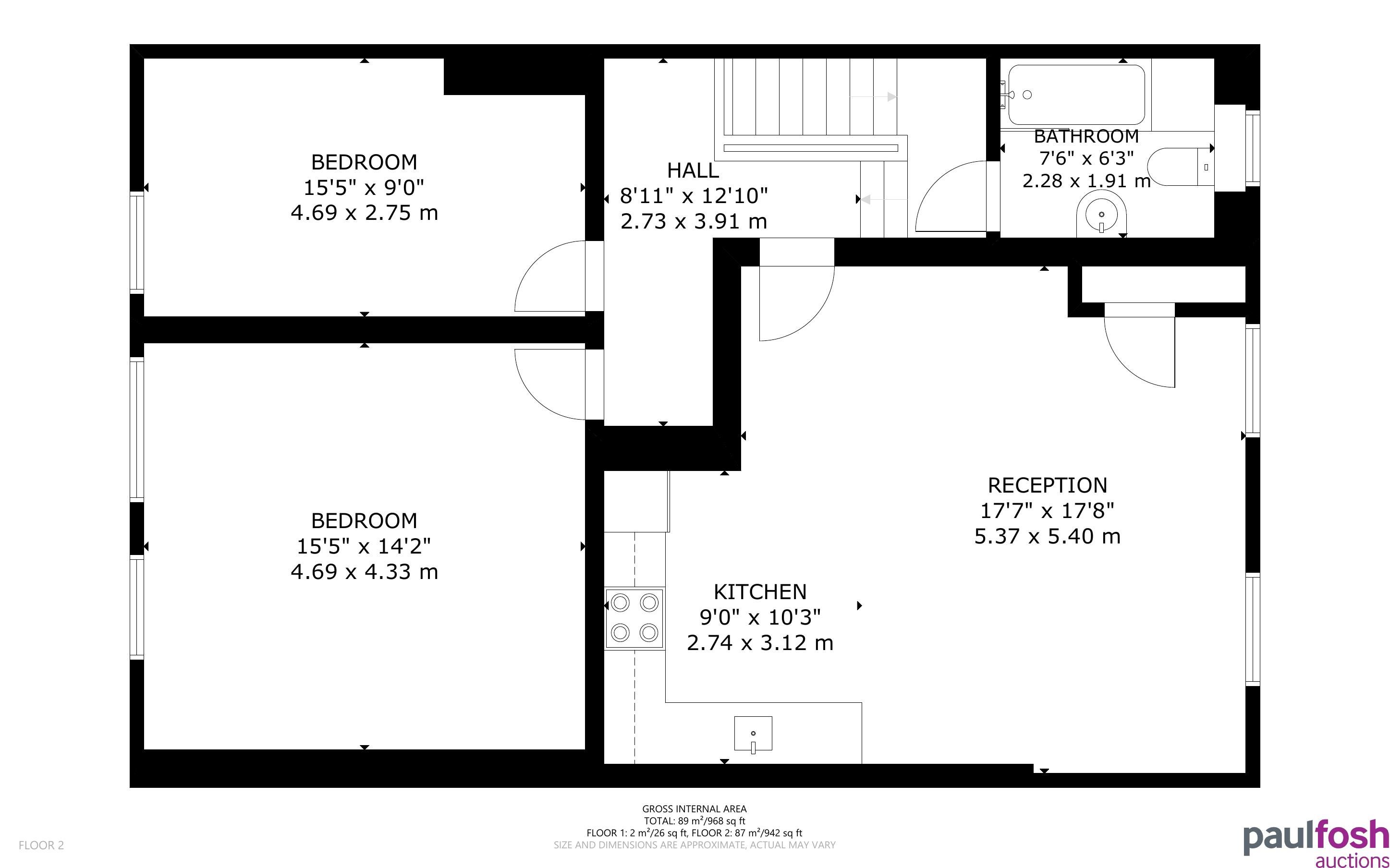
| Second Floor | Flat D - Entrance, lounge, 2 bedrooms, bathroom, kitchen | £400 pcm |
| Second Floor | Flat A - Entrance, lounge/kitchen, 2 bedrooms, bathroom | £495 pcm |
| Total annual income | £20,940 |
Restaurant to be sold with vacant possession but previously let at £20K per annum
Total annual income from flats £20,940
Advised Freehold - to be verified by solicitor
Auction fees: The sale of each lot is subject to a buyer’s premium/admin fee of 1.5% of the purchase price (subject to a minimum of £1,500 for sale prices between £1 and £50,000 or subject to a minimum of £2,400 for sale prices of £50,001 upwards) including VAT unless otherwise stated.
Additional costs: The purchase of the property may be subject to (but are not limited to), VAT (if applicable), reimbursement of the seller’s search fees, reimbursement of seller’s legal and/or sales costs, stamp duty/land transaction tax (LTT). Please check accompanying legal pack for further details.
* Generally speaking Guide Prices are provided as an indication of each seller's minimum expectation, i.e. 'The Reserve'. They are not necessarily figures which a property will sell for and may change at any time prior to the auction. Virtually every property will be offered subject to a Reserve (a figure below which the Auctioneer cannot sell the property during the auction) which we expect will be set within the Guide Range or no more than 10% above a single figure Guide.
As a trusted partner of Paul Fosh Auctions, Together could offer the auction finance you need, when you need it. Visit togethermoney.com for more information.
If considering a mortgage, we advise that you inspect and consider the property carefully with your lender before bidding.
By setting a proxy bid, the system will automatically bid on your behalf to maintain your position as the highest bidder, up to your proxy bid amount. If you are outbid, you will be notified via email so you can opt to increase your bid if you so choose.
If two of more users place identical bids, the bid that was placed first takes precedence, and this includes proxy bids.
Another bidder placed an automatic proxy bid greater or equal to the bid you have just placed. You will need to bid again to stand a chance of winning.