Waiting for video...
ONLINE AUCTION from 29th AUGUST-31st AUGUST
A substantial freehold building currently comprising a ground floor retail unit and 5 flats. The flats are fully tenanted and are achieving a rental income of £2,600 pcm. The ground floor unit is currently vacant but has potential to achieve between £450/£500 pcm.
The vendor has advised that they have received a mortgage valuation of £325,000.
Location
The property is located in a prominent position on one of the main shopping thoroughfares through the town of Haverfordwest. The property is situated within close proximity to the A4076 and Haverforwest train station. There are a number of independent and national retailers situated along the road, including Barclays Bank, JD Weatherspoons and Poundland. To the rear of the property is a public car park.
Services
The property benefits from water, electric (not tested).
VAT
We have been advised there is no VAT applicable on this sale.
Please note the tour is from 2022 prior to the property being let.
VIRTUAL TOUR
A
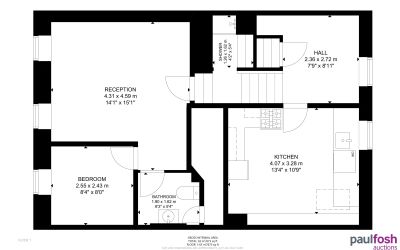
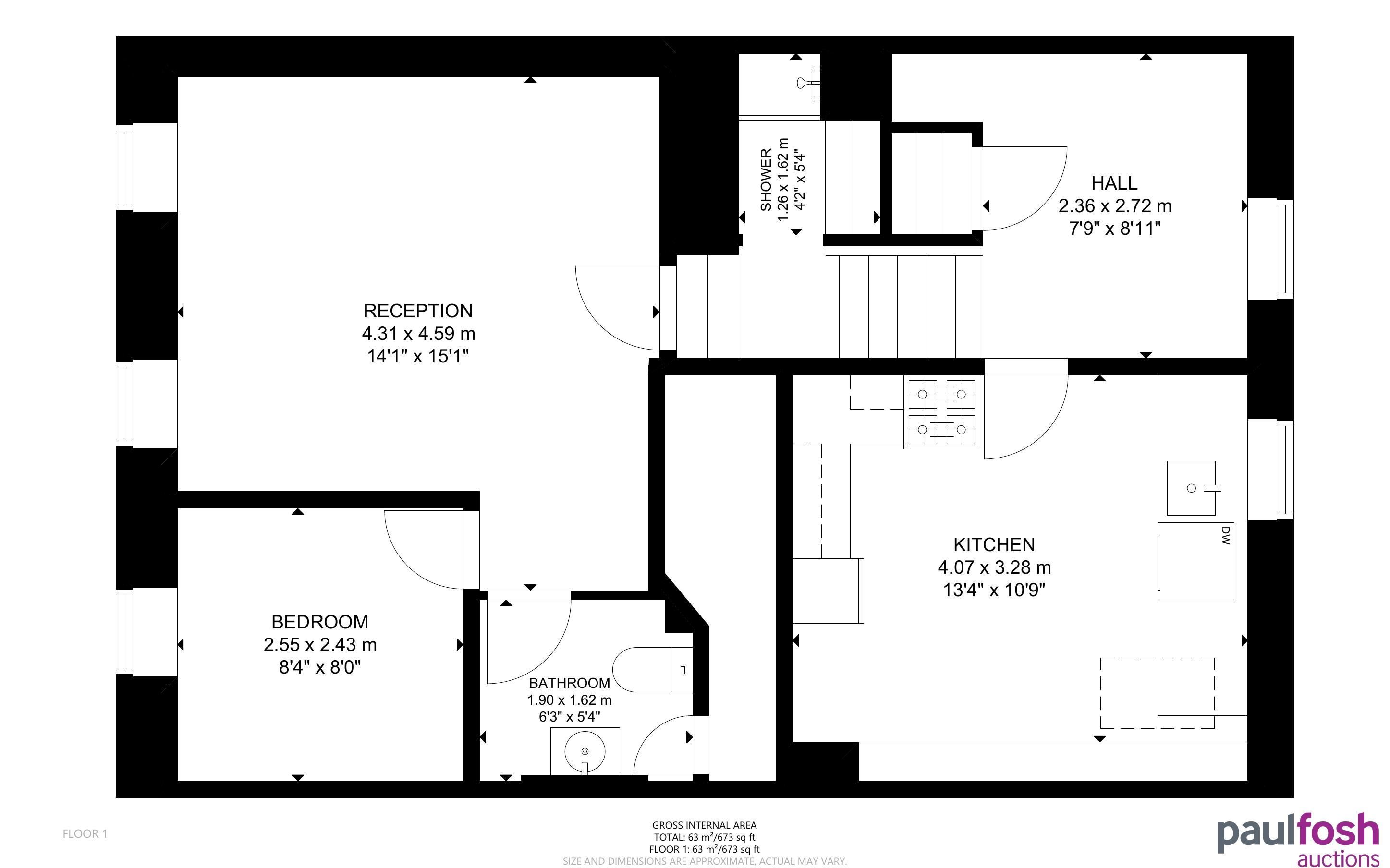
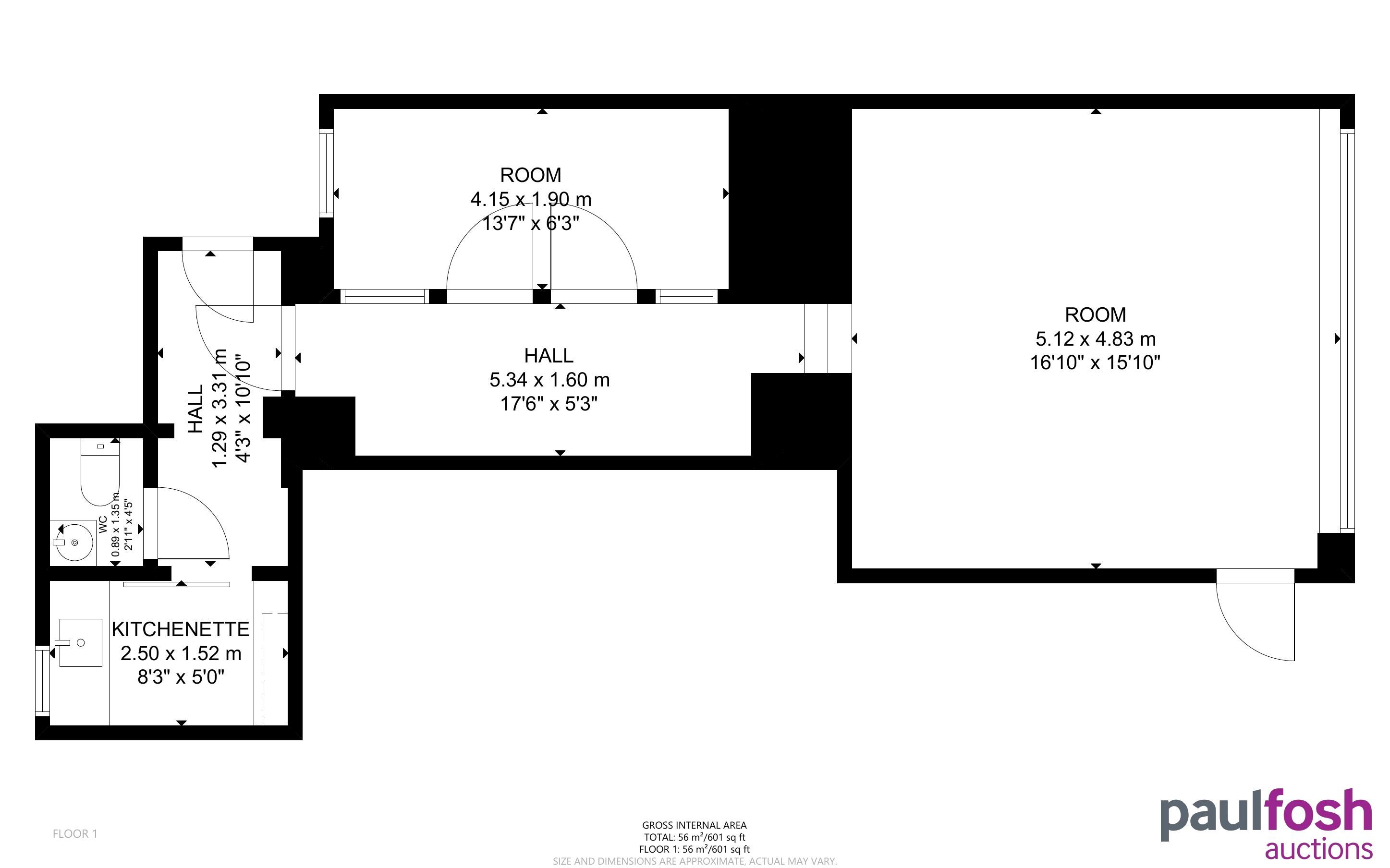
| Floor | Description | Area Sq Ft | Area Sq M |
|---|---|---|---|
| Ground Floor | Retail/Office | 266.19 | 24.73 |
| Rear Office | 84.82 | 7.88 | |
| Kitchen | 40.90 | 3.8 | |
| WC | 12.92 | 1.20 | |
| First Floor Flat 1 | Lounge/Kitchen | 175.88 | 16.34 |
| Bedroom | 90.42 | 8.4 | |
| Bathroom | 29.71 | 2.76 | |
| First Floor Flat 2 | Unable to Access | ||
| First Floor Studio Flat 3 | Kitchen/Living Room/Bedroom | 143.16 | 13.3 |
| Second Floor Flat 4 | Living Room/Kitchen | 176.53 | 16.4 |
| Bedroom | 79.44 | 7.38 | |
| Bathroom | 29.70 | 2.76 | |
| Second Floor Flat 5 | Unable to Access | ||
| Outside | Rear Garden |
| Tenant | Tenancy Type | Start Date / End Date | Tenancy Term | Rental Amount |
|---|---|---|---|---|
| Flat 1 | Tenancy Agreement | 1st Sept 2022/Periodic | Periodic | £550 pcm |
| Flat 2 | Tenancy Agreement | 12th Oct 2022/Periodic | Periodic | £575 pcm |
| Flat 3 | Fixed Term Standard Occupation Contract | 19th Jan 2023/18th Jan 2024 | 12 months | £375 pcm |
| Flat 4 | Tenancy Agreement | 1st Sept 2022/Periodic | Periodic | £550 pcm |
| Flat 5 | Tenancy Agreement | 28th Oct 2022/Periodic | Periodic | £650 pcm |
| Shop | Vacant | Vacant | Vacant | Vacant |
| Total Income | £2,600 pcm (£31,200 pa) |
Advised Freehold - to be verified by solicitor
Auction fees: The sale of each lot is subject to a buyer’s premium/admin fee of 1.5% of the purchase price (subject to a minimum of £1,500 for sale prices between £1 and £50,000 or subject to a minimum of £2,400 for sale prices of £50,001 upwards) including VAT unless otherwise stated.
Additional costs: The purchase of the property may be subject to (but are not limited to), VAT (if applicable), reimbursement of the seller’s search fees, reimbursement of seller’s legal and/or sales costs, stamp duty/land transaction tax (LTT). Please check accompanying legal pack for further details.
* Generally speaking Guide Prices are provided as an indication of each seller's minimum expectation, i.e. 'The Reserve'. They are not necessarily figures which a property will sell for and may change at any time prior to the auction. Virtually every property will be offered subject to a Reserve (a figure below which the Auctioneer cannot sell the property during the auction) which we expect will be set within the Guide Range or no more than 10% above a single figure Guide.
As a trusted partner of Paul Fosh Auctions, Together could offer the auction finance you need, when you need it. Visit togethermoney.com for more information.
If considering a mortgage, we advise that you inspect and consider the property carefully with your lender before bidding.
By setting a proxy bid, the system will automatically bid on your behalf to maintain your position as the highest bidder, up to your proxy bid amount. If you are outbid, you will be notified via email so you can opt to increase your bid if you so choose.
If two of more users place identical bids, the bid that was placed first takes precedence, and this includes proxy bids.
Another bidder placed an automatic proxy bid greater or equal to the bid you have just placed. You will need to bid again to stand a chance of winning.